파주시설경매 파주시 탄현면 법흥리 1652-506 헤이리예맥홀 №2024 타경 84553

차별화된 5단계 맞춤형 경매 서비스 - 더블옥션
법원경매전문 (주)더블옥션은 보증보험 가입 및 법원 매수대리 등록업체로 안전하고 책임있는 컨설팅을 진행합니다. 등록번호(02-17-3)
사건번호 2024 타경 84553

본건은 경기도 파주시 탄현면 법흥리 1652-506 헤이리예맥홀
소재하는 근린시설경매 물건의 포스팅입니다.

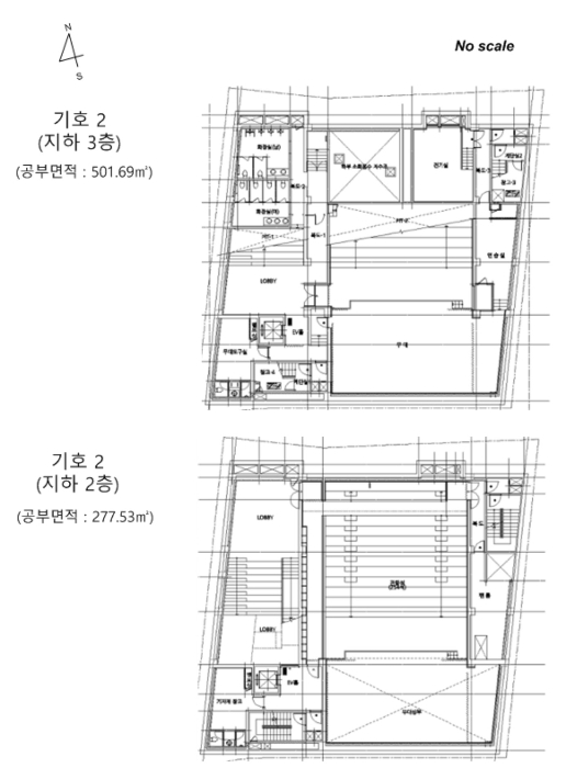
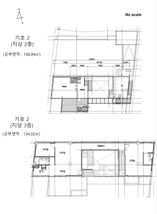
건물면적 [ 1399.6㎡ (423.38평) ]
토지면적 [ 692.5㎡ (209.48평) ]

시세를 반영한 감정가 3,477,895,000에서
1회 유찰되어 감정가 대비 70%
최저가 2,434,527,000부터
입찰에 참여할 수 있습니다.

입찰보증금은 최저가 10%
243,452,700이며,
고양지원 경매4계에서
2025-10-15(10:00)
진행 예정입니다.

소재지 [지번] 경기도 파주시 탄현면 법흥리 1652-506 헤이리예맥홀
[도로명 주소] 경기도 파주시 탄현면 헤이리마을길 82-146 헤이리예맥홀
용도 근린시설 채권자 서** 감정가 3,477,895,000
건물면적 1399.6㎡ (423.38평) 채무자 조** 최저가 (70%) 2,434,527,000
토지면적 692.5㎡ (209.48평) 소유자 조** 보증금 (10%) 243,452,700
매각대상 경매종류 임의경매 사건접수일 2024-11-04
최초경매일 2025-10-15 배당종기일 2025-01-30 경매개시일 2024-11-05
주의사항 ☞ 여기 눌러 무료상담 받아보기

기일내역

회차 매각기일 최저매각금액 결과
신건 2025-09-03 3,477,895,000 유찰
2차 2025-10-15 2,434,527,000
정확한 권리 분석, 꼼꼼한 현장 조사, 예상 낙찰가 제안, 대출 연계, 점유자 이전 - 더블옥션

임차인현황

임차인 점유현황 전입/확정/배당
i** 상가임차인
점포 비01호(29평방미터)2023.09.12.~2025.09.11.
전입 : / 확정 : X / 배당 : X
i** 상가임차인
사무실 3층302호(26.4평방미터)2024.04.18.~2026.04.17.
전입 : / 확정 : X / 배당 : X
더블옥션은 법원 등록 및 보증 보험 가입 업체로 안전하고 성공적인 당신의 비즈니스를 지원합니다. - 더블옥션
목록 2 건물 1층 출입구 전경(안내문 부착)
목록 1 토지 및 목록 2 건물 전경(1)
목록 1 토지 및 목록 2 건물 전경(2)
도로명 주소(목록 2)
주위전경-1
본건전경-1
본건전경-3
1층전경-2
2층전경-2
2층전경-4
3층전경-2
3층전경-4
지하층전경-2
주위전경-2
본건전경-2
1층전경-1
2층전경-1
2층전경-3
3층전경-1
3층전경-3
지하층전경-1
지하층전경-3
내 부 구 조 도
내 부 구 조 도
내 부 구 조 도
위 치 도
광 역 위 치 도
지 적 도
부동산 경매 전문기업 - 더블옥션

Related Posts