유성아파트경매 유성구 원신흥동 488 인스빌리베라 제803동 제18층 제1803호 №2024 타경 123254

차별화된 5단계 맞춤형 경매 서비스 - 더블옥션
법원경매전문 (주)더블옥션은 보증보험 가입 및 법원 매수대리 등록업체로 안전하고 책임있는 컨설팅을 진행합니다. 등록번호(02-17-3)
사건번호 2024 타경 123254

본건은 대전광역시 유성구 원신흥동 488 인스빌리베라 제803동 제18층 제1803호
소재하는 아파트경매 물건의 포스팅입니다.

건물면적 [ 130.65㎡ (39.52평) ]
대지권 [ 81.18㎡ (24.56평) ]

시세를 반영한 감정가 892,000,000에서
1회 유찰되어 감정가 대비 70%
최저가 624,400,000부터
입찰에 참여할 수 있습니다.

입찰보증금은 최저가 10%
62,440,000이며,
대전지방법원 경매7계에서
2025-10-14(10:00)
진행 예정입니다.

소재지 [지번] 대전광역시 유성구 원신흥동 488 인스빌리베라 제803동 제18층 제1803호
[도로명 주소] 대전광역시 유성구 봉명로 48 인스빌리베라 제803동 제18층 제1803호
용도 아파트 채권자 ㈜** 감정가 892,000,000
건물면적 130.65㎡ (39.52평) 채무자 박**외1명 최저가 (70%) 624,400,000
대지권 81.18㎡ (24.56평) 소유자 박** 보증금 (10%) 62,440,000
매각대상 경매종류 임의경매 사건접수일 2024-11-26
최초경매일 2025-10-14 배당종기일 2025-03-03 경매개시일 2024-11-28
주의사항 ☞ 여기 눌러 무료상담 받아보기

기일내역

회차 매각기일 최저매각금액 결과
2025-04-15 892,000,000 변경
신건 2025-09-02 892,000,000 유찰
2차 2025-10-14 624,400,000
정확한 권리 분석, 꼼꼼한 현장 조사, 예상 낙찰가 제안, 대출 연계, 점유자 이전 - 더블옥션

임차인현황

임차인 점유현황 전입/확정/배당
조사된 임차인 내역 없음
더블옥션은 법원 등록 및 보증 보험 가입 업체로 안전하고 성공적인 당신의 비즈니스를 지원합니다. - 더블옥션
건물 전경
동 표시 및 지
동 표시 및 공
우편함 모습
복도 모습
호실 표시 모습
안내문 부착







위 치 도
광 역 위 치 도
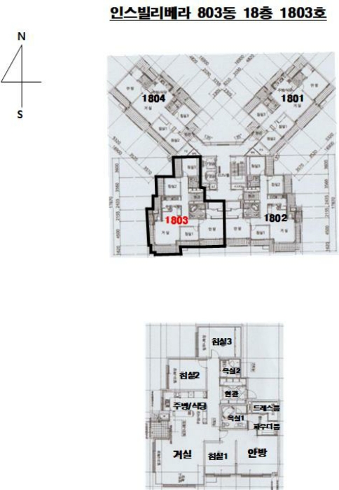
내 부 구 조 도
지번약도
부동산 경매 전문기업 - 더블옥션

Related Posts