사건번호 2024 타경 63634
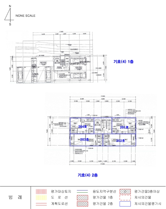
본건은 부산광역시 연제구 연산동 670-31 시원미소드림 주건축물제1동외 2필지
소재하는 다가구(원룸등)경매 물건의 포스팅입니다.
건물면적 [ 483.98㎡ (146.4평) ]
토지면적 [ 240.4㎡ (72.72평) ]
시세를 반영한 감정가 1,569,201,600에서
1회 유찰되어 감정가 대비 70%
최저가 1,098,441,000부터
입찰에 참여할 수 있습니다.
입찰보증금은 최저가 10%
109,844,100이며,
부산지방법원 경매12계에서
2025-10-14(10:00)
진행 예정입니다.
| 소재지 | [지번] 부산광역시 연제구 연산동 670-31 시원미소드림 주건축물제1동외 2필지 [도로명 주소] 부산광역시 연제구 월드컵대로10번길 13 시원미소드림 주건축물제1동외 2필지 |
||||
|---|---|---|---|---|---|
| 용도 | 다가구(원룸등) | 채권자 | 연** | 감정가 | 1,569,201,600 |
| 건물면적 | 483.98㎡ (146.4평) | 채무자 | 최** | 최저가 | (70%) 1,098,441,000 |
| 토지면적 | 240.4㎡ (72.72평) | 소유자 | 신**외2명 | 보증금 | (10%) 109,844,100 |
| 매각대상 | 경매종류 | 임의경매 | 사건접수일 | 2024-10-04 | |
| 최초경매일 | 2025-10-14 | 배당종기일 | 2024-12-26 | 경매개시일 | 2024-10-10 |
| 주의사항 | ☞ 여기 눌러 무료상담 받아보기 | ||||
기일내역
| 회차 | 매각기일 | 최저매각금액 | 결과 |
|---|---|---|---|
| 신건 | 2025-08-26 | 1,569,201,600 | 유찰 |
| 2차 | 2025-10-14 | 1,098,441,000 |
임차인현황
| 임차인 | 점유현황 | 전입/확정/배당 |
|---|---|---|
| i** | 주거임차인 주거용 402호2019.04.30.~ |
전입 : 2019-04-02 / 확정 : 2024-10-07 / 배당 : 2024-11-04 |
| i** | 주거임차인 주거용 203호 |
전입 : 2019-04-17 / 확정 : X / 배당 : X |
| i** | 주거임차인 주거용 301호미상 |
전입 : 2022-03-22 / 확정 : X / 배당 : X |
| i** | 주거임차인 주거용 303호미상 |
전입 : 2023-02-10 / 확정 : X / 배당 : X |
| i** | 주거임차인 주거용 401호2023.09.11.~ |
전입 : 2023-09-11 / 확정 : 2023-09-11 / 배당 : 2024-11-04 |
| i** | 주거임차인 주거용 201호2024.01.14.~ |
전입 : 2024-01-15 / 확정 : 2024-10-04 / 배당 : 2024-10-18 |
| i** | 주거임차인 주거용 501호2024.05.25.~ |
전입 : 2024-05-27 / 확정 : 2024-05-30 / 배당 : 2024-12-19 |
| i** | 주거임차인 주거용 204호2024.06.05.~ |
전입 : 2024-06-07 / 확정 : 2024-06-07 / 배당 : 2024-11-26 |
| i** | 주거임차인 주거용 503호2024.06.14.~ |
전입 : 2024-06-14 / 확정 : 2024-06-14 / 배당 : 2024-12-06 |
| i** | 주거임차인 주거용 202호2024.09.26.~ |
전입 : 2024-09-26 / 확정 : 2024-09-26 / 배당 : 2024-11-19 |
| i** | 주거임차인 주거용 301호2024.09.30.~ |
전입 : 2024-09-26 / 확정 : 2024-09-26 / 배당 : 2024-11-15 |
| i** | 주거임차인 주거용 302호미상 |
전입 : 2024-09-30 / 확정 : X / 배당 : X |
| i** | 주거임차인 주거용 502호미상 |
전입 : 2024-10-07 / 확정 : X / 배당 : X |




















![본건[2층 202호] 및 폐문부재](https://filelab.co.kr/auctionimg/2025/20250809/B0004102024013006363410.jpg)
![본건[2층 204호] 및 폐문부재](https://filelab.co.kr/auctionimg/2025/20250809/B0004102024013006363411.jpg)
![본건[3층 302호] 및 폐문부재](https://filelab.co.kr/auctionimg/2025/20250809/B0004102024013006363412.jpg)
![본건[3층 304호] 및 폐문부재](https://filelab.co.kr/auctionimg/2025/20250809/B0004102024013006363413.jpg)
![본건[4층 402호] 및 폐문부재](https://filelab.co.kr/auctionimg/2025/20250809/B0004102024013006363414.jpg)
![본건[4층 404호] 및 폐문부재](https://filelab.co.kr/auctionimg/2025/20250809/B0004102024013006363415.jpg)
![본건[5층 502호] 및 폐문부재](https://filelab.co.kr/auctionimg/2025/20250809/B0004102024013006363416.jpg)



![본건[2층 201호] 및 폐문부재](https://filelab.co.kr/auctionimg/2025/20250809/B0004102024013006363420.jpg)
![본건[2층 203호] 및 폐문부재](https://filelab.co.kr/auctionimg/2025/20250809/B0004102024013006363421.jpg)
![본건[3층 301호] 및 폐문부재](https://filelab.co.kr/auctionimg/2025/20250809/B0004102024013006363422.jpg)
![본건[3층 303호] 및 폐문부재](https://filelab.co.kr/auctionimg/2025/20250809/B0004102024013006363423.jpg)
![본건[4층 401호] 및 폐문부재](https://filelab.co.kr/auctionimg/2025/20250809/B0004102024013006363424.jpg)
![본건[4층 403호] 및 폐문부재](https://filelab.co.kr/auctionimg/2025/20250809/B0004102024013006363425.jpg)
![본건[5층 501호] 및 폐문부재](https://filelab.co.kr/auctionimg/2025/20250809/B0004102024013006363426.jpg)
![본건[5층 503호] 및 폐문부재](https://filelab.co.kr/auctionimg/2025/20250809/B0004102024013006363427.jpg)












