중주택경매 중구 용두동 132-8 №2025 타경 502192

차별화된 5단계 맞춤형 경매 서비스 - 더블옥션
법원경매전문 (주)더블옥션은 보증보험 가입 및 법원 매수대리 등록업체로 안전하고 책임있는 컨설팅을 진행합니다. 등록번호(02-17-3)
사건번호 2025 타경 502192

본건은 대전광역시 중구 용두동 132-8
소재하는 근린주택경매 물건의 포스팅입니다.

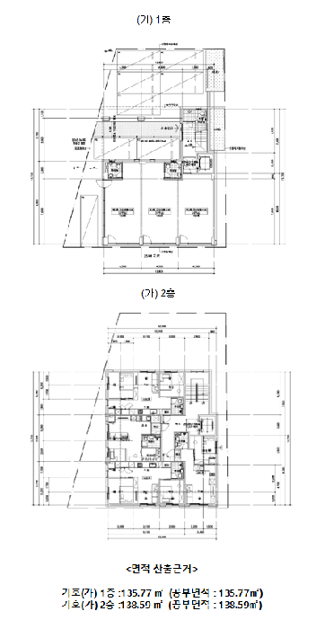
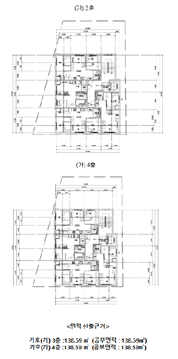
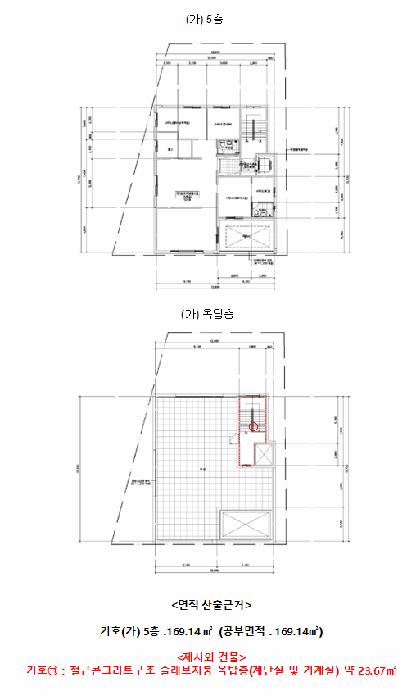
건물면적 [ 744.35㎡ (225.16평) ]
토지면적 [ 362.3㎡ (109.6평) ]

시세를 반영한 감정가 2,384,080,400에서
1회 유찰되어 감정가 대비 70%
최저가 1,668,856,000부터
입찰에 참여할 수 있습니다.

입찰보증금은 최저가 10%
166,885,600이며,
대전지방법원 경매8계에서
2025-09-25(10:00)
진행 예정입니다.

소재지 [지번] 대전광역시 중구 용두동 132-8
[도로명 주소] 대전광역시 중구 계룡로755번길 6
용도 근린주택 채권자 한** 감정가 2,384,080,400
건물면적 744.35㎡ (225.16평) 채무자 김** 최저가 (70%) 1,668,856,000
토지면적 362.3㎡ (109.6평) 소유자 김** 보증금 (10%) 166,885,600
매각대상 경매종류 임의경매 사건접수일 2025-04-07
최초경매일 2025-09-25 배당종기일 2025-07-14 경매개시일 2025-04-08
주의사항 ☞ 여기 눌러 무료상담 받아보기

기일내역

회차 매각기일 최저매각금액 결과
신건 2025-08-21 2,384,080,400 유찰
2차 2025-09-25 1,668,856,000
정확한 권리 분석, 꼼꼼한 현장 조사, 예상 낙찰가 제안, 대출 연계, 점유자 이전 - 더블옥션

임차인현황

임차인 점유현황 전입/확정/배당
i** 주거임차인
주거용 403호2022.11.15.~2024.11.14
전입 : 2022-11-14 / 확정 : 2022-11-16 / 배당 : 2025-04-25
i** 주거임차인
주거용 401호2022.12.13~현재
전입 : 2022-11-23 / 확정 : 2022-11-24 / 배당 : 2025-04-24
i** 주거임차인
주거용 402호2022.12.19.~2025.2.1
전입 : 2022-12-19 / 확정 : 2022-11-16 / 배당 : 2024-12-23
i** 주거임차인
주거용 203호2022.12.21.~2024.12.20
전입 : 2022-12-19 / 확정 : 2022-12-19 / 배당 : 2025-04-29
i** 주거임차인
주거용 201호2023.05.04~현재
전입 : 2023-01-09 / 확정 : 2023-01-04 / 배당 : 2025-04-24
i** 주거임차인
주거용 201호2023.05.04~현재
전입 : 2023-01-09 / 확정 : 2023-01-04 / 배당 : 2025-04-24
i** 주거임차인
주거용 501호2023.01.14~현재
전입 : 2023-01-11 / 확정 : 2023-01-11 / 배당 : 2025-04-23
i** 주거임차인
주거용 303호2023.01.20~현재
전입 : 2023-01-13 / 확정 : 2022-12-27 / 배당 : 2025-04-18
i** 주거임차인
주거용 204호2023.02.06.~2025.02.05
전입 : 2023-02-06 / 확정 : 2023-01-10 / 배당 : 2025-07-09
i** 주거임차인
기타 501호
전입 : 2023-03-16 / 확정 : X / 배당 : X
i** 주거임차인
주거용 302호2023.4.13.~현재
전입 : 2023-03-27 / 확정 : 2023-03-27 / 배당 : 2025-04-24
i** 주거임차인
주거용 201호
전입 : 2023-04-26 / 확정 : X / 배당 : X
i** 주거임차인
주거용 301호2023.09.02.~2025.03.01
전입 : 2023-09-04 / 확정 : 2023-09-12 / 배당 : 2025-06-12
i** 상가임차인
점포 103호2023.12.31.~2025.12.31
전입 : / 확정 : 2024-04-09 / 배당 : 2025-05-15
i** 주거임차인
주거용 404호2024.02.15.~2025.02.14
전입 : 2024-02-15 / 확정 : 2024-02-15 / 배당 : 2025-05-13
i** 상가임차인
점포 101-1호2024.03.11.~2026.03.10
전입 : / 확정 : 2025-01-23 / 배당 : 2025-04-23
i** 주거임차인
기타 501호
전입 : 2024-04-30 / 확정 : X / 배당 : X
i** 상가임차인
점포 102-1호2024.04.30.~2026.04.29
전입 : / 확정 : 2025-04-18 / 배당 : 2025-04-21
i** 주거임차인
주거용 202호2024.08.25.~2025.08.24
전입 : 2024-08-29 / 확정 : 2024-09-09 / 배당 : 2025-05-02
i** 주거임차인
기타 (등본 발급 제한으로 확인 불가
전입 : 2024-09-05 / 확정 : X / 배당 : X
i** 상가임차인
점포 102-2호2024.04.30.~2026.04.29
전입 : / 확정 : X / 배당 : 2025-04-21
더블옥션은 법원 등록 및 보증 보험 가입 업체로 안전하고 성공적인 당신의 비즈니스를 지원합니다. - 더블옥션
403호 안내문 부착
404호 안내문 부착
501호 안내문 부착
6층 창고 모습
6층 계단실 모습
401호 안내문 부착
402호 안내문 부착
201호 안내문 부착
202호 안내문 부착
203호 안내문 부착
204호 안내문 부착
3층 복도 모습
301호 안내문 부착
302호 안내문 부착
303호 안내문 부착
304호 안내문 부착
4층 복도 모습
주변 도로 모습
주변 도로 모습
주변 도로 모습
건물 앞쪽 모습
도로명주소 표시 모습
건물 좌측 모습
건물 뒷쪽 모습
건물 뒷쪽 모습
건물 우측 모습
건물 우측 모습
1층 점포 모습
1츠 점포들 모습
101호 안내문 부착
102호 안내문 부착
103호 안내문 부착
공동 출입구 모습
우편함 모습
승강기실 모습
1층 호실미상 안내문 부착
2층 복도 모습
본건 전경(북측에서 촬영)
본건 남서측 접면 도로
기호(2) 건물 전경
기호(2) 건물 1층 사무소부분
기호(2) 건물 1층 사무소부분
본건 북서측 접면 도로
기호(2) 건물 주택부분 공동 출입구
제시외 건물(ㄱ)
본건 전경(서측에서 촬영)
지적도
광 역 위 치 도
상 세 위 치 도
지적 및 건물개황도
지적 및 건물개황도
지적 및 건물개황도
지적 및 건물개황도
부동산 경매 전문기업 - 더블옥션

Related Posts