사건번호 2025 타경 11391
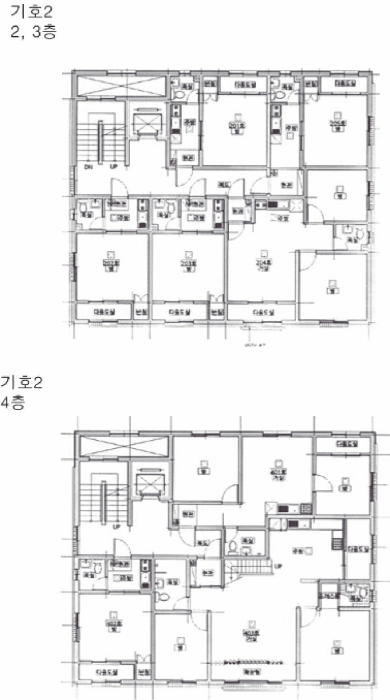
본건은 충청남도 아산시 용화동 1379 1동
소재하는 다가구(원룸등)경매 물건의 포스팅입니다.
건물면적 [ 669.8㎡ (202.61평) ]
토지면적 [ 323.7㎡ (97.92평) ]
시세를 반영한 감정가 1,270,332,000에서
1회 유찰되어 감정가 대비 70%
최저가 889,232,000부터
입찰에 참여할 수 있습니다.
입찰보증금은 최저가 10%
88,923,200이며,
천안지원 경매3계에서
2025-09-29(10:00)
진행 예정입니다.
| 소재지 | [지번] 충청남도 아산시 용화동 1379 1동 [도로명 주소] 충청남도 아산시 용화고길30번길 10-9 1동 |
||||
|---|---|---|---|---|---|
| 용도 | 다가구(원룸등) | 채권자 | 아** | 감정가 | 1,270,332,000 |
| 건물면적 | 669.8㎡ (202.61평) | 채무자 | 박** | 최저가 | (70%) 889,232,000 |
| 토지면적 | 323.7㎡ (97.92평) | 소유자 | 최** | 보증금 | (10%) 88,923,200 |
| 매각대상 | 경매종류 | 임의경매 | 사건접수일 | 2025-03-12 | |
| 최초경매일 | 2025-09-29 | 배당종기일 | 2025-06-16 | 경매개시일 | 2025-03-13 |
| 주의사항 | ☞ 여기 눌러 무료상담 받아보기 | ||||
기일내역
| 회차 | 매각기일 | 최저매각금액 | 결과 |
|---|---|---|---|
| 신건 | 2025-08-25 | 1,270,332,000 | 유찰 |
| 2차 | 2025-09-29 | 889,232,000 |
임차인현황
| 임차인 | 점유현황 | 전입/확정/배당 |
|---|---|---|
| i** | 주거임차인 주거용 401호2019.07.15.-2025.07.14. |
전입 : 2019-07-19 / 확정 : 2019-07-03 / 배당 : 2025-06-12 |
| i** | 주거임차인 주거용 402호2019.9.5.부터 현재까지 |
전입 : 2019-09-23 / 확정 : 2019-09-24 / 배당 : 2025-04-16 |
| i** | 주거임차인 주거용 304호2019.11.20.-현재까지 |
전입 : 2019-10-22 / 확정 : 2019-10-22 / 배당 : 2025-06-02 |
| i** | 주거임차인 주거용 403호2020.02.27.-현재까지 |
전입 : 2020-02-26 / 확정 : 2020-02-10 / 배당 : 2025-03-26 |
| i** | 주거임차인 주거용 302호2019.6.28.-현재까지 |
전입 : 2020-12-03 / 확정 : X / 배당 : 2025-05-21 |
| i** | 주거임차인 주거용 305호2020.12.08.-2025.03.25. |
전입 : 2020-12-08 / 확정 : 2020-12-08 / 배당 : 2025-03-25 |
| i** | 주거임차인 주거용 204호2021.09.15.-2023.9.15. |
전입 : 2021-10-06 / 확정 : 2024-06-04 / 배당 : 2025-03-25 |
| i** | 주거임차인 주거용 203호2022.06.17.-현재까지 |
전입 : 2022-06-17 / 확정 : 2022-06-17 / 배당 : 2025-06-10 |
| i** | 주거임차인 주거용 303호2023.09.24.-현재까지 |
전입 : 2023-09-25 / 확정 : 2023-09-25 / 배당 : 2025-05-13 |
| i** | 주거임차인 주거용 201호2016.11.19.-현재까지 |
전입 : 2025-03-28 / 확정 : 2016-11-21 / 배당 : 2025-03-26 |





















![[제시외 물건 ㄴ(화단과 수목)]](https://filelab.co.kr/auctionimg/2025/20250808/B000283202501300113911.jpg)
![[대상건물 후측면]
(3층과 옥탑층(제시외 ㄱ}}](https://filelab.co.kr/auctionimg/2025/20250808/B000283202501300113912.jpg)
![[대상부동산과 인근 전경]](https://filelab.co.kr/auctionimg/2025/20250808/B000283202501300113915.jpg)
![[대상건물 동측면]
(3층과 옥탑층(제시외 ㄱ))](https://filelab.co.kr/auctionimg/2025/20250808/B000283202501300113917.jpg)
![[대상건물 1층]](https://filelab.co.kr/auctionimg/2025/20250808/B000283202501300113918.jpg)
![[대상건물 측후면]](https://filelab.co.kr/auctionimg/2025/20250808/B0002832025013001139110.jpg)
![[대상건물]](https://filelab.co.kr/auctionimg/2025/20250808/B0002832025013001139111.jpg)









