성동아파트경매 성동구 응봉동 275 신동아아파트 제3동 제2층 제201호 №2024 타경 1792

차별화된 5단계 맞춤형 경매 서비스 - 더블옥션
법원경매전문 (주)더블옥션은 보증보험 가입 및 법원 매수대리 등록업체로 안전하고 책임있는 컨설팅을 진행합니다. 등록번호(02-17-3)
사건번호 2024 타경 1792

본건은 서울특별시 성동구 응봉동 275 신동아아파트 제3동 제2층 제201호
소재하는 아파트경매 물건의 포스팅입니다.

건물면적 [ 59.97㎡ (18.14평) ]
대지권 [ 28.48㎡ (8.62평) ]

시세를 반영한 감정가 789,000,000에서
신건으로 감정가 대비 100%
최저가 789,000,000부터
입찰에 참여할 수 있습니다.

입찰보증금은 최저가 10%
78,900,000이며,
서울동부지방법원 경매6계에서
2025-09-15(10:00)
진행 예정입니다.

소재지 [지번] 서울특별시 성동구 응봉동 275 신동아아파트 제3동 제2층 제201호
[도로명 주소] 서울특별시 성동구 독서당로 375 신동아아파트 제3동 제2층 제201호
용도 아파트 채권자 ㈜**외2명 감정가 789,000,000
건물면적 59.97㎡ (18.14평) 채무자 이**외1명 최저가 (100%) 789,000,000
대지권 28.48㎡ (8.62평) 소유자 이** 보증금 (10%) 78,900,000
매각대상 재개발 경매종류 임의경매 사건접수일 2024-06-12
최초경매일 2025-09-15 배당종기일 2024-09-02 경매개시일 2024-06-13
주의사항 ☞ 여기 눌러 무료상담 받아보기

기일내역

회차 매각기일 최저매각금액 결과
신건 2025-09-15 789,000,000
정확한 권리 분석, 꼼꼼한 현장 조사, 예상 낙찰가 제안, 대출 연계, 점유자 이전 - 더블옥션

임차인현황

임차인 점유현황 전입/확정/배당
조사된 임차인 내역 없음
더블옥션은 법원 등록 및 보증 보험 가입 업체로 안전하고 성공적인 당신의 비즈니스를 지원합니다. - 더블옥션
전경
출입구
201호
본건전경
공동현관
단지내 주차장 일부
주위환경
본건전경
층복도
본건현관
주위환경
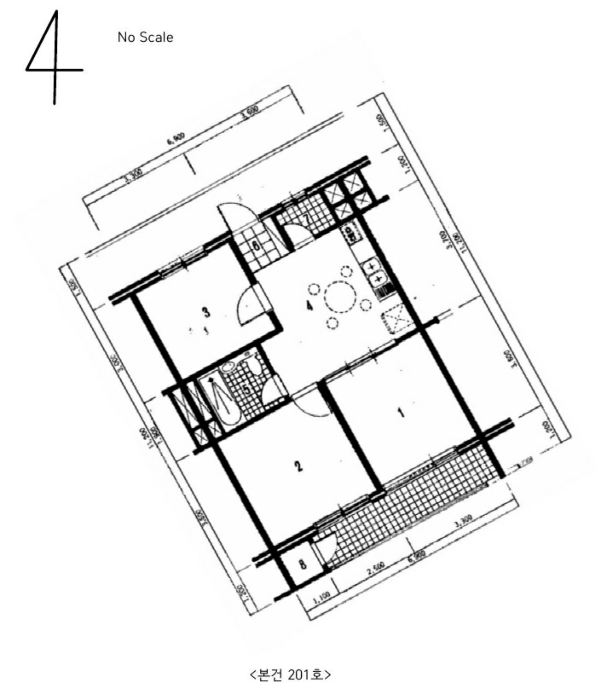
호별배치 및 내부구조도
호별배치 및 내부구조도
위 치 도
광 역 위 치 도
부동산 경매 전문기업 - 더블옥션

Related Posts