사건번호 2024 타경 8667
본건은 광주광역시 광산구 수완동 369-6 외 2필지
소재하는 주택경매 물건의 포스팅입니다.
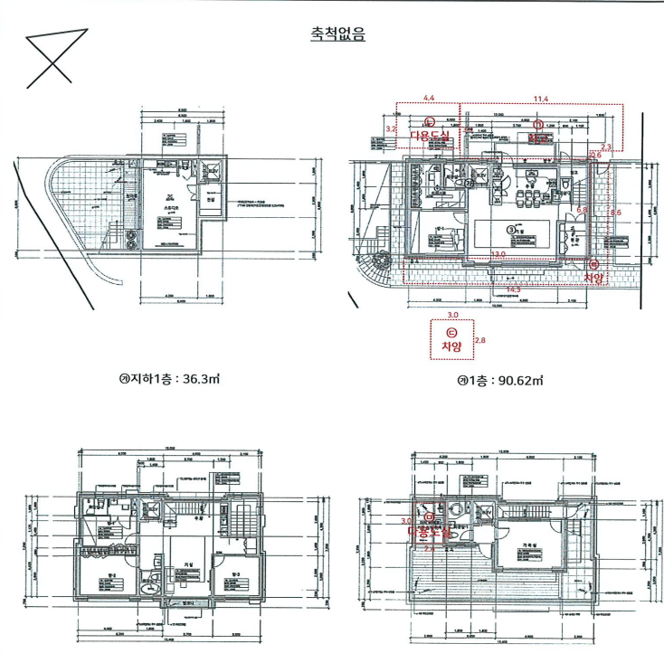
건물면적 [ 363.66㎡ (110.01평) ]
토지면적 [ 전체:1099㎡ (332.45평)
매각지분:551㎡ (166.68평) ]
시세를 반영한 감정가 1,385,149,320에서
1회 유찰되어 감정가 대비 70%
최저가 969,605,000부터
입찰에 참여할 수 있습니다.
입찰보증금은 최저가 10%
96,960,500이며,
광주지방법원 경매6계에서
2025-09-24(10:00)
진행 예정입니다.
| 소재지 | [지번] 광주광역시 광산구 수완동 369-6 외 2필지 [도로명 주소] 광주광역시 광산구 하완길 105-5 외 2필지 |
||||
|---|---|---|---|---|---|
| 용도 | 주택 | 채권자 | ㈜** | 감정가 | 1,385,149,320 |
| 건물면적 | 363.66㎡ (110.01평) | 채무자 | 윤** | 최저가 | (70%) 969,605,000 |
| 토지면적 | 전체:1099㎡ (332.45평) 매각지분:551㎡ (166.68평) |
소유자 | 윤** | 보증금 | (10%) 96,960,500 |
| 매각대상 | 건물전부, 토지지분 | 경매종류 | 임의경매 | 사건접수일 | 2024-11-12 |
| 최초경매일 | 2025-09-24 | 배당종기일 | (-일) | 경매개시일 | 2024-11-15 |
| 주의사항 | ☞ 여기 눌러 무료상담 받아보기 | ||||
기일내역
| 회차 | 매각기일 | 최저매각금액 | 결과 |
|---|---|---|---|
| 신건 | 2025-08-13 | 1,385,149,320 | 유찰 |
| 2차 | 2025-09-24 | 969,605,000 |
임차인현황
| 임차인 | 점유현황 | 전입/확정/배당 |
|---|---|---|
| 조사된 임차인 내역 없음 | ||




















