하남주택경매 하남시 감일동 감일지구단독42-8블럭 №2024 타경 7521

차별화된 5단계 맞춤형 경매 서비스 - 더블옥션
법원경매전문 (주)더블옥션은 보증보험 가입 및 법원 매수대리 등록업체로 안전하고 책임있는 컨설팅을 진행합니다. 등록번호(02-17-3)
사건번호 2024 타경 7521

본건은 경기도 하남시 감일동 감일지구단독42-8블럭
소재하는 근린주택경매 물건의 포스팅입니다.

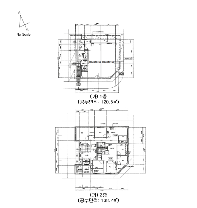
건물면적 [ 560.82㎡ (169.65평) ]
토지면적 [ 244.7㎡ (74.02평) ]

시세를 반영한 감정가 3,187,766,920에서
1회 유찰되어 감정가 대비 70%
최저가 2,231,437,000부터
입찰에 참여할 수 있습니다.

입찰보증금은 최저가 10%
223,143,700이며,
성남지원 경매8계에서
2025-10-13(10:00)
진행 예정입니다.

소재지 [지번] 경기도 하남시 감일동 감일지구단독42-8블럭
[도로명 주소] 경기도 하남시 감일로102번길 26
용도 근린주택 채권자 수**외1명 감정가 3,187,766,920
건물면적 560.82㎡ (169.65평) 채무자 이** 최저가 (70%) 2,231,437,000
토지면적 244.7㎡ (74.02평) 소유자 이** 보증금 (10%) 223,143,700
매각대상 경매종류 임의경매 사건접수일 2024-12-16
최초경매일 2025-10-13 배당종기일 2025-02-24 경매개시일 2024-12-17
주의사항 ☞ 여기 눌러 무료상담 받아보기

기일내역

회차 매각기일 최저매각금액 결과
신건 2025-09-01 3,187,766,920 유찰
2차 2025-10-13 2,231,437,000
정확한 권리 분석, 꼼꼼한 현장 조사, 예상 낙찰가 제안, 대출 연계, 점유자 이전 - 더블옥션

임차인현황

임차인 점유현황 전입/확정/배당
i** 주거임차인
주거용 일부(3층방2칸)2021.12.28.부터2025.12.27.까지
전입 : 2021-12-28 / 확정 : 2021-12-01 / 배당 : 2025-02-17
i** 상가임차인
점포 48.60002022/03/31-2024/03/30
전입 : / 확정 : X / 배당 : X
i** 주거임차인
주거용 2층201호57.21㎡2022.06.18.~2024.10.31.
전입 : 2022-06-20 / 확정 : 2022-05-06 / 배당 : 2025-01-09
i** 주거임차인
주거용
전입 : 2023-11-29 / 확정 : X / 배당 : X
i** 상가임차인
점포 1층102호66.6㎡전부2024.01.31.부터2026.01.30.까지
전입 : / 확정 : X / 배당 : X
i** 주거임차인
주거용 일부(3층방3칸)2024.06.03.부터2026.06.02.까지
전입 : 2024-06-04 / 확정 : 2024-04-08 / 배당 : 2025-02-12
i** 주거임차인
주거용
전입 : 2024-06-17 / 확정 : X / 배당 : X
i** 주거임차인
주거용
전입 : 2024-06-17 / 확정 : X / 배당 : X
더블옥션은 법원 등록 및 보증 보험 가입 업체로 안전하고 성공적인 당신의 비즈니스를 지원합니다. - 더블옥션
감일로 102번길 26 건물전경
감일로 102번길 26 건물전경
감일로 102번길 26 건물전경
도로명주소 및 공동출입구
201호 출입문
202호 출입문
301호 출입문
302호 출입문
401호 출입문
1층 101호 전경
1층 101호 전경
1층 102호 전경
우편함 전경
본건 전경
본건 주위환경2
본건 주위환경1
본건 공동현관
위 치 도
지 적 도
건물개황도 및 내부구조도
건물개황도 및 내부구조도
건물개황도 및 내부구조도
부동산 경매 전문기업 - 더블옥션

Related Posts