사건번호 2025 타경 51200
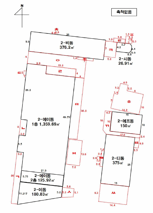
본건은 전라남도 보성군 미력면 도개리 961-1
소재하는 공장경매 물건의 포스팅입니다.
건물면적 [ 3641.35㎡ (1101.5평) ]
토지면적 [ 6301.8㎡ (1906.29평) ]
시세를 반영한 감정가 1,561,319,350에서
2회 유찰되어 감정가 대비 56%
최저가 874,339,000부터
입찰에 참여할 수 있습니다.
입찰보증금은 최저가 10%
87,433,900이며,
순천지원 경매4계에서
2025-11-10(10:00)
진행 예정입니다.
| 소재지 | [지번] 전라남도 보성군 미력면 도개리 961-1 [도로명 주소] 전라남도 보성군 미력면 농공길 28 |
||||
|---|---|---|---|---|---|
| 용도 | 공장 | 채권자 | ㈜** | 감정가 | 1,561,319,350 |
| 건물면적 | 3641.35㎡ (1101.5평) | 채무자 | 보** | 최저가 | (56%) 874,339,000 |
| 토지면적 | 6301.8㎡ (1906.29평) | 소유자 | 보** | 보증금 | (10%) 87,433,900 |
| 매각대상 | 경매종류 | 임의경매 | 사건접수일 | 2025-03-10 | |
| 최초경매일 | 2025-11-10 | 배당종기일 | 2025-06-11 | 경매개시일 | 2025-03-12 |
| 주의사항 | ☞ 여기 눌러 무료상담 받아보기 | ||||
기일내역
| 회차 | 매각기일 | 최저매각금액 | 결과 |
|---|---|---|---|
| 신건 | 2025-08-11 | 1,561,319,350 | 유찰 |
| 2차 | 2025-09-22 | 1,092,924,000 | 유찰 |
| 3차 | 2025-11-10 | 874,339,000 |
임차인현황
| 임차인 | 점유현황 | 전입/확정/배당 |
|---|---|---|
| 조사된 임차인 내역 없음 | ||









































































































