사건번호 2024 타경 44525
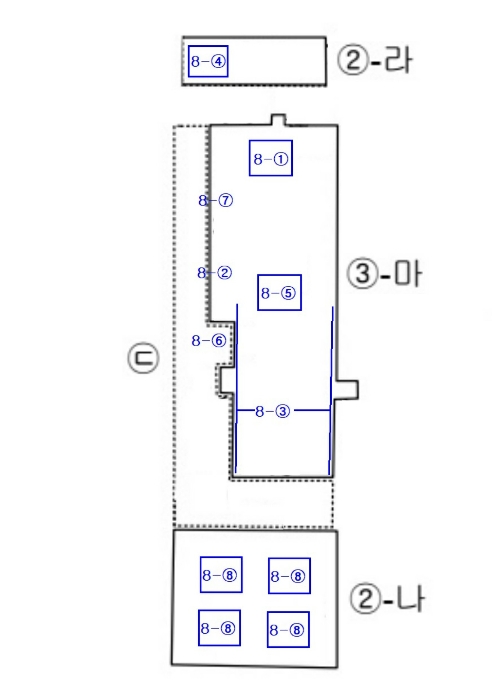
본건은 대구광역시 달성군 구지면 내리 837-6 본관동
소재하는 공장경매 물건의 포스팅입니다.
건물면적 [ 9979.23㎡ (3018.7평) ]
토지면적 [ 16415.1㎡ (4965.55평) ]
시세를 반영한 감정가 13,772,534,030에서
신건으로 감정가 대비 100%
최저가 13,772,534,030부터
입찰에 참여할 수 있습니다.
입찰보증금은 최저가 10%
1,377,253,403이며,
대구서부지원 경매1계에서
2025-08-19(10:00)
진행 예정입니다.
| 소재지 | [지번] 대구광역시 달성군 구지면 내리 837-6 본관동 [도로명 주소] 대구광역시 달성군 구지면 달성2차서로 55 본관동 |
||||
|---|---|---|---|---|---|
| 용도 | 공장 | 채권자 | ㈜**외2명 | 감정가 | 13,772,534,030 |
| 건물면적 | 9979.23㎡ (3018.7평) | 채무자 | ㈜** | 최저가 | (100%) 13,772,534,030 |
| 토지면적 | 16415.1㎡ (4965.55평) | 소유자 | ㈜** | 보증금 | (10%) 1,377,253,403 |
| 매각대상 | 임금채권 | 경매종류 | 임의경매 | 사건접수일 | 2024-12-05 |
| 최초경매일 | 2025-08-19 | 배당종기일 | 2025-03-10 | 경매개시일 | 2024-12-05 |
| 주의사항 | ☞ 여기 눌러 무료상담 받아보기 | ||||
기일내역
| 회차 | 매각기일 | 최저매각금액 | 결과 |
|---|---|---|---|
| 신건 | 2025-08-19 | 13,772,534,030 |
임차인현황
| 임차인 | 점유현황 | 전입/확정/배당 |
|---|---|---|
| i** | 공장임차인 공장 3동1층공장2021.9.5.~2027.9.5. |
전입 : / 확정 : X / 배당 : 2025-03-10 |
| i** | 주거임차인 주거용 |
전입 : 2022-10-27 / 확정 : X / 배당 : X |
| i** | 공장임차인 공장 비동전부2024.9.11.~2026.9.11. |
전입 : / 확정 : X / 배당 : 2025-03-10 |








































































