사건번호 2023 타경 4931
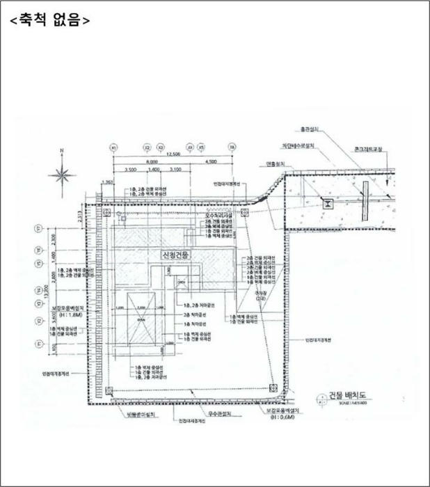
본건은 경기도 양평군 양서면 대심리 175-2 주건축물제1동외 2필지
소재하는 주택경매 물건의 포스팅입니다.
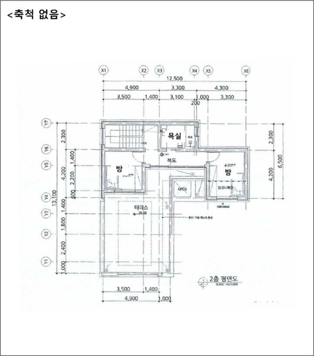
건물면적 [ 116.95㎡ (35.38평) ]
토지면적 [ 전체:617㎡ (186.64평)
매각지분:495.4㎡ (149.86평) ]
시세를 반영한 감정가 530,025,200에서
1회 유찰되어 감정가 대비 70%
최저가 371,018,000부터
입찰에 참여할 수 있습니다.
입찰보증금은 최저가 10%
37,101,800이며,
여주지원 경매6계에서
2025-08-20(10:00)
진행 예정입니다.
| 소재지 | [지번] 경기도 양평군 양서면 대심리 175-2 주건축물제1동외 2필지 [도로명 주소] 경기도 양평군 양서면 대심길 26-5 주건축물제1동 |
||||
|---|---|---|---|---|---|
| 용도 | 주택 | 채권자 | 김**외1명 | 감정가 | 530,025,200 |
| 건물면적 | 116.95㎡ (35.38평) | 채무자 | 유**외1명 | 최저가 | (70%) 371,018,000 |
| 토지면적 | 전체:617㎡ (186.64평) 매각지분:495.4㎡ (149.86평) |
소유자 | 이** | 보증금 | (10%) 37,101,800 |
| 매각대상 | 건물전부, 토지지분, 공시가격2~3억 | 경매종류 | 임의경매 | 사건접수일 | 2023-10-13 |
| 최초경매일 | 2025-08-20 | 배당종기일 | 2024-01-22 | 경매개시일 | 2023-10-16 |
| 주의사항 | ☞ 여기 눌러 무료상담 받아보기 | ||||
기일내역
| 회차 | 매각기일 | 최저매각금액 | 결과 |
|---|---|---|---|
| 신건 | 2025-07-16 | 530,025,000 | 유찰 |
| 2차 | 2025-08-20 | 371,018,000 |
임차인현황
| 임차인 | 점유현황 | 전입/확정/배당 |
|---|---|---|
| i** | 주거임차인 주거용2023. 7.1.부터 |
전입 : 2023-10-16 / 확정 : 2023-11-07 / 배당 : 2023-11-13 |























