양평자동차관련시설경매 양평군 단월면 봉상리 44 주건축물제1동 №2023 타경 36655

차별화된 5단계 맞춤형 경매 서비스 - 더블옥션

법원경매전문 (주)더블옥션은 보증보험 가입 및 법원 매수대리 등록업체로 안전하고 책임있는 컨설팅을 진행합니다. 등록번호(02-17-3)

사건번호 2023 타경 36655

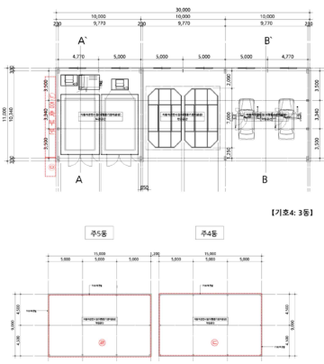
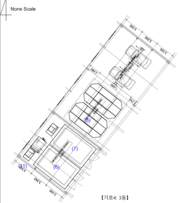
본건은 경기도 양평군 단월면 봉상리 44 주건축물제1동
소재하는 자동차관련시설경매 물건의 포스팅입니다.

건물면적 [ 1680.67㎡ (508.4평) ]
토지면적 [ 7551㎡ (2284.17평) ]

시세를 반영한 감정가 5,367,535,500에서
1회 유찰되어 감정가 대비 70%
최저가 3,757,275,000부터
입찰에 참여할 수 있습니다.

입찰보증금은 최저가 10%
375,727,500이며,
여주지원 경매2계에서
2025-08-13(10:00)
진행 예정입니다.

소재지 [지번] 경기도 양평군 단월면 봉상리 44 주건축물제1동
[도로명 주소] 경기도 양평군 단월면 경강로 3703 주건축물제1동
용도 자동차관련시설 채권자 김**외1명 감정가 5,367,535,500
건물면적 1680.67㎡ (508.4평) 채무자 ㈜** 최저가 (70%) 3,757,275,000
토지면적 7551㎡ (2284.17평) 소유자 ㈜** 보증금 (10%) 375,727,500
매각대상 대항력있는임차인 경매종류 임의경매 사건접수일 2023-09-13
최초경매일 2025-08-13 배당종기일 2023-10-23 경매개시일 2023-09-18
주의사항 ☞ 여기 눌러 무료상담 받아보기

기일내역

회차 매각기일 최저매각금액 결과
신건 2025-07-09 5,367,535,500 유찰
2차 2025-08-13 3,757,275,000
정확한 권리 분석, 꼼꼼한 현장 조사, 예상 낙찰가 제안, 대출 연계, 점유자 이전 - 더블옥션

임차인현황

임차인 점유현황 전입/확정/배당
i** 상가임차인
점포 3,041㎡2013.07.01~2023.07.01
전입 : / 확정 : X / 배당 : X
더블옥션은 법원 등록 및 보증 보험 가입 업체로 안전하고 성공적인 당신의 비즈니스를 지원합니다. - 더블옥션

7
8
9
10
11
12
13
14
15
16
17
18
19
20
21
22
23
24
25
26
27
28
29
30
31
32
33
34
35
36
37
38
39
40
41
3
4
6
5
1
2
부동산 경매 전문기업 - 더블옥션

Related Posts