서초상가경매 서초구 서초동 1338-21 코리아비지니스센타 제지하2층 제1호외 2개호 №2024 타경 147(1)

차별화된 5단계 맞춤형 경매 서비스 - 더블옥션

법원경매전문 (주)더블옥션은 보증보험 가입 및 법원 매수대리 등록업체로 안전하고 책임있는 컨설팅을 진행합니다. 등록번호(02-17-3)

사건번호 2024 타경 147(1)

본건은 서울특별시 서초구 서초동 1338-21 코리아비지니스센타 제지하2층 제1호외 2개호
소재하는 근린상가경매 물건의 포스팅입니다.

건물면적 [ 864.85㎡ (261.62평) ]
대지권 [ 129.56㎡ (39.19평) ]

시세를 반영한 감정가 6,240,000,000에서
3회 유찰되어 감정가 대비 51%
최저가 3,194,880,000부터
입찰에 참여할 수 있습니다.

입찰보증금은 최저가 10%
319,488,000이며,
서울중앙지방법원 경매21계에서
2025-08-19(10:00)
진행 예정입니다.

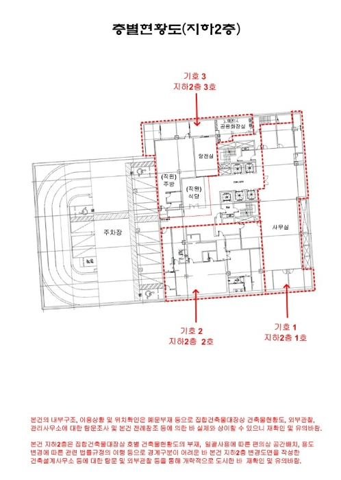
소재지 [지번] 서울특별시 서초구 서초동 1338-21 코리아비지니스센타 제지하2층 제1호외 2개호
[도로명 주소] 서울특별시 서초구 강남대로 309 코리아비지니스센타 제지하2층 제1호
용도 근린상가 채권자 ㈜** 감정가 6,240,000,000
건물면적 864.85㎡ (261.62평) 채무자 ㈜** 최저가 (51%) 3,194,880,000
대지권 129.56㎡ (39.19평) 소유자 ㈜** 보증금 (10%) 319,488,000
매각대상 대항력있는임차인 경매종류 임의경매 사건접수일 2024-01-11
최초경매일 2025-08-19 배당종기일 2024-04-03 경매개시일 2024-01-16
주의사항 ☞ 여기 눌러 무료상담 받아보기

기일내역

회차 매각기일 최저매각금액 결과
신건 2025-03-11 6,240,000,000 유찰
2025-04-15 4,992,000,000 변경
2차 2025-05-27 4,992,000,000 유찰
3차 2025-07-15 3,993,600,000 유찰
4차 2025-08-19 3,194,880,000
정확한 권리 분석, 꼼꼼한 현장 조사, 예상 낙찰가 제안, 대출 연계, 점유자 이전 - 더블옥션

임차인현황

임차인 점유현황 전입/확정/배당
i** 상가임차인
지하2층 2호일부(60㎡)
전입 : / 확정 : X / 배당 : X
i** 상가임차인
지하2층 1호일부(60㎡)
전입 : / 확정 : X / 배당 : X
i** 상가임차인
지하2층 2호일부(92.3㎡)
전입 : / 확정 : X / 배당 : X
i** 상가임차인
지하2층 2호일부(60㎡)
전입 : / 확정 : 2023-12-06 / 배당 : X
i** 상가임차인
지하2층 2호일부(121.29㎡)
전입 : / 확정 : 2023-12-06 / 배당 : 2024-03-29
i** 상가임차인
지하2층일부(284.52㎡)
전입 : / 확정 : 2023-12-06 / 배당 : 2024-03-29
i** 상가임차인
지하2층 2호일부(92.3㎡)
전입 : / 확정 : 2024-02-05 / 배당 : 2024-03-25
더블옥션은 법원 등록 및 보증 보험 가입 업체로 안전하고 성공적인 당신의 비즈니스를 지원합니다. - 더블옥션




















부동산 경매 전문기업 - 더블옥션

Related Posts