양주주택경매 양주시 고암동 601-6 주건축물제1동 №2025 타경 71659

차별화된 5단계 맞춤형 경매 서비스 - 더블옥션

법원경매전문 (주)더블옥션은 보증보험 가입 및 법원 매수대리 등록업체로 안전하고 책임있는 컨설팅을 진행합니다. 등록번호(02-17-3)

사건번호 2025 타경 71659

본건은 경기도 양주시 고암동 601-6 주건축물제1동
소재하는 근린주택경매 물건의 포스팅입니다.

건물면적 [ 613.62㎡ (185.62평) ]
토지면적 [ 291.4㎡ (88.15평) ]

시세를 반영한 감정가 1,818,645,880에서
1회 유찰되어 감정가 대비 70%
최저가 1,273,052,116부터
입찰에 참여할 수 있습니다.

입찰보증금은 최저가 10%
127,305,212이며,
의정부지방법원 경매1계에서
2025-08-13(10:30)
진행 예정입니다.

소재지 [지번] 경기도 양주시 고암동 601-6 주건축물제1동
[도로명 주소] 경기도 양주시 고원2길 73 주건축물제1동
용도 근린주택 채권자 고** 감정가 1,818,645,880
건물면적 613.62㎡ (185.62평) 채무자 최** 최저가 (70%) 1,273,052,116
토지면적 291.4㎡ (88.15평) 소유자 최** 보증금 (10%) 127,305,212
매각대상 위반건축물 경매종류 임의경매 사건접수일 2025-02-17
최초경매일 2025-08-13 배당종기일 2025-05-30 경매개시일 2025-02-18
주의사항 ☞ 여기 눌러 무료상담 받아보기

기일내역

회차 매각기일 최저매각금액 결과
신건 2025-07-09 1,818,645,880 유찰
2차 2025-08-13 1,273,052,116
정확한 권리 분석, 꼼꼼한 현장 조사, 예상 낙찰가 제안, 대출 연계, 점유자 이전 - 더블옥션

임차인현황

임차인 점유현황 전입/확정/배당
i** 주거임차인
주거용
전입 : 2022-11-17 / 확정 : X / 배당 : X
i** 주거임차인
주거용
전입 : 2023-03-30 / 확정 : X / 배당 : X
i** 주거임차인
주거용 2층 206호 전체2023.08.12.
전입 : 2023-08-14 / 확정 : 2023-08-14 / 배당 : 2025-03-21
i** 상가임차인
점포 1층 전부2022.12.01.
전입 : / 확정 : 2024-07-30 / 배당 : 2025-02-27
i** 주거임차인
주거용 2층 202호2024.12.01.~2025.11.30.
전입 : 2025-02-26 / 확정 : 2025-02-27 / 배당 : 2025-03-05
i** 주거임차인
주거용 2층 201호(27㎡)2022.12.05.
전입 : 2024-10-11 / 확정 : X / 배당 : 2024-10-11
더블옥션은 법원 등록 및 보증 보험 가입 업체로 안전하고 성공적인 당신의 비즈니스를 지원합니다. - 더블옥션

204호 세대현관문 전경
205호 세대현관문 전경
206호 세대현관문 전경
301호 세대현관문 전경
302호 세대현관문 전경
본건 목록2 건물의 전면 전경
본건 목록2 건물의 측면 전경
본건 목록1 대지 및 지상 건물의 전경
본건 건물 1층 상가 및 2-3층 공동출입문 전경
1층 상가의 전면 전경
공동우편함 전경
2-3층으로 진입하는1층 공동현관 전경
201호 세대현관문 전경
202호 세대현관문 전경
203호 세대현관문 전경
303호 세대현관문 전경
본건 전경
본건 전경
본건 출입 1층 현관
주변 전경
주변 전경
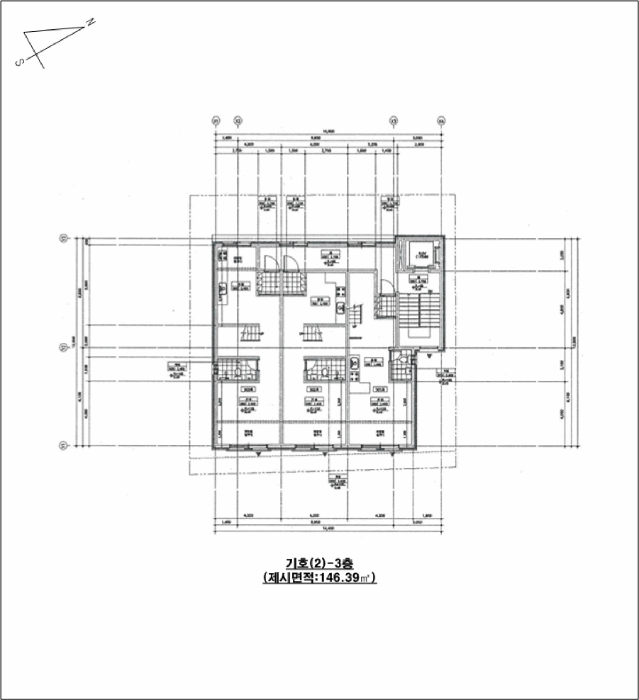
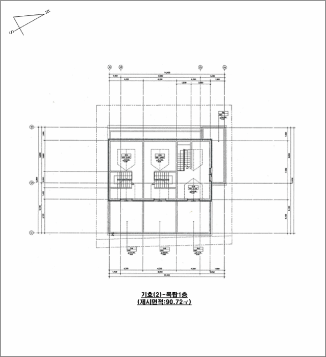
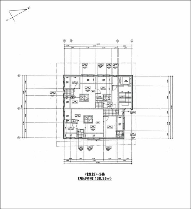
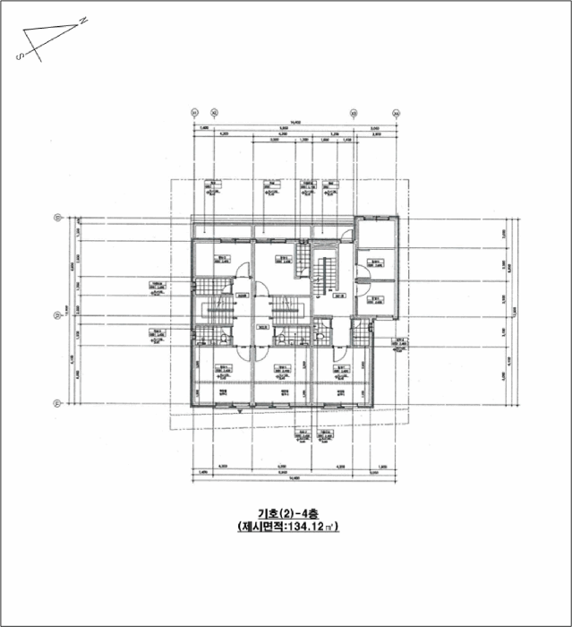
건 물 개 황 도
건 물 개 황 도
건 물 개 황 도
건 물 개 황 도
건 물 개 황 도
광 역 위 치 도
위 치 도
지 적 도
부동산 경매 전문기업 - 더블옥션

Related Posts