관악다가구(원룸등)경매 관악구 봉천동 98-12 №2023 타경 6179

차별화된 5단계 맞춤형 경매 서비스 - 더블옥션

법원경매전문 (주)더블옥션은 보증보험 가입 및 법원 매수대리 등록업체로 안전하고 책임있는 컨설팅을 진행합니다. 등록번호(02-17-3)

사건번호 2023 타경 6179

본건은 서울특별시 관악구 봉천동 98-12
소재하는 다가구(원룸등)경매 물건의 포스팅입니다.

건물면적 [ 332.9㎡ (100.7평) ]
토지면적 [ 153㎡ (46.28평) ]

시세를 반영한 감정가 1,578,817,080에서
1회 유찰되어 감정가 대비 80%
최저가 1,263,053,000부터
입찰에 참여할 수 있습니다.

입찰보증금은 최저가 10%
126,305,300이며,
서울중앙지방법원 경매7계에서
2025-08-14(10:00)
진행 예정입니다.

소재지 [지번] 서울특별시 관악구 봉천동 98-12
[도로명 주소] 서울 관악구 남부순환로231길 50-10
용도 다가구(원룸등) 채권자 수** 감정가 1,578,817,080
건물면적 332.9㎡ (100.7평) 채무자 서** 최저가 (80%) 1,263,053,000
토지면적 153㎡ (46.28평) 소유자 서**외1명 보증금 (10%) 126,305,300
매각대상 위반건축물 경매종류 임의경매 사건접수일 2023-12-08
최초경매일 2025-08-14 배당종기일 2024-02-23 경매개시일 2023-12-11
주의사항 ☞ 여기 눌러 무료상담 받아보기

기일내역

회차 매각기일 최저매각금액 결과
2024-09-26 1,578,817,080 변경
2025-05-01 1,578,817,080 변경
신건 2025-07-10 1,578,817,080 유찰
2차 2025-08-14 1,263,053,000
정확한 권리 분석, 꼼꼼한 현장 조사, 예상 낙찰가 제안, 대출 연계, 점유자 이전 - 더블옥션

임차인현황

임차인 점유현황 전입/확정/배당
i** 주거임차인
303호
전입 : 2018-01-23 / 확정 : 2018-01-23 / 배당 : 2024-01-03
i** 주거임차인
502호
전입 : 2018-05-02 / 확정 : 2018-05-02 / 배당 : 2024-01-16
i** 주거임차인
501호(옥탑)
전입 : 2018-05-17 / 확정 : 2018-05-17 / 배당 : 2024-01-05
i** 주거임차인
101호
전입 : 2020-03-26 / 확정 : 2020-03-09 / 배당 : 2023-12-28
i** 주거임차인
203호
전입 : 2021-04-30 / 확정 : 2021-03-22 / 배당 : 2024-01-05
i** 주거임차인
201호
전입 : 2021-05-17 / 확정 : 2021-04-20 / 배당 : 2024-01-03
i** 주거임차인
301호
전입 : 2021-05-24 / 확정 : 2021-04-26 / 배당 : 2024-01-08
i** 주거임차인
104호
전입 : 2021-09-01 / 확정 : 2021-08-12 / 배당 : 2024-01-12
i** 주거임차인
401호
전입 : 2021-09-10 / 확정 : 2021-08-19 / 배당 : 2024-01-05
i** 주거임차인
302호
전입 : 2021-11-30 / 확정 : 2021-10-21 / 배당 : 2023-12-27
i** 주거임차인
204호
전입 : 2022-01-24 / 확정 : 2022-01-24 / 배당 : 2023-12-27
i** 주거임차인
지층 103호
전입 : 2022-03-10 / 확정 : X / 배당 : X
i** 주거임차인
402호
전입 : 2022-04-22 / 확정 : 2022-03-21 / 배당 : 2024-01-03
i** 주거임차인
102호
전입 : 2022-11-07 / 확정 : 2022-09-30 / 배당 : 2024-02-16
i** 주거임차인
304호
전입 : 2022-11-21 / 확정 : 2022-12-05 / 배당 : 2024-01-09
i** 주거임차인
202호
전입 : 2023-04-28 / 확정 : 2023-04-07 / 배당 : 2024-01-17
더블옥션은 법원 등록 및 보증 보험 가입 업체로 안전하고 성공적인 당신의 비즈니스를 지원합니다. - 더블옥션

지층 103호, 104호
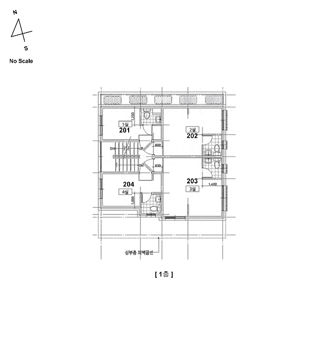
1층 201호, 202호
1층 203호, 204호
2층 301호, 302호
2층 303호, 304호
공동현관
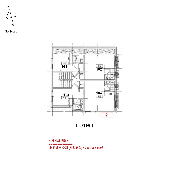
지층 101호, 102호
도로명 주소
전경
3층 401호
3층 402호
옥탑 501호
옥탑 502호
본건 전경
제시외 건물(ㄱ)
제시외 건물(ㄱ,ㄴ)
제시외 건물(ㄴ) 현관문
제시외건물(ㄷ,ㄹ,ㅁ)
제시외 건물(ㄹ)
제시외 건물(ㄱ) 501호 현관문
제시외건물(ㅂ)
내 부 구 조 도
내 부 구 조 도
내 부 구 조 도
내 부 구 조 도
내 부 구 조 도
위 치 도
광 역 위 치 도
지 적 도
부동산 경매 전문기업 - 더블옥션

Related Posts