사건번호 2024 타경 2162
본건은 서울특별시 마포구 서교동 381-27 소담헌
소재하는 주택경매 물건의 포스팅입니다.
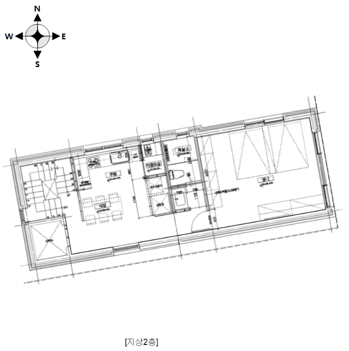
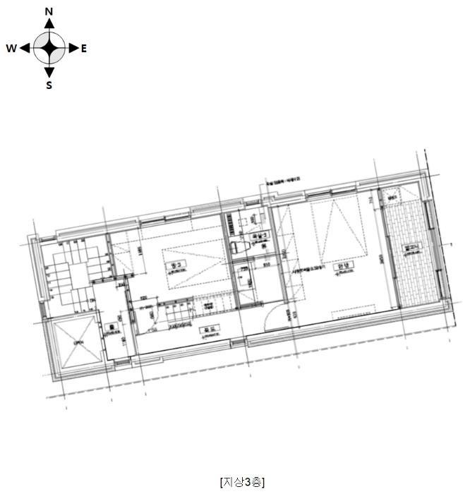
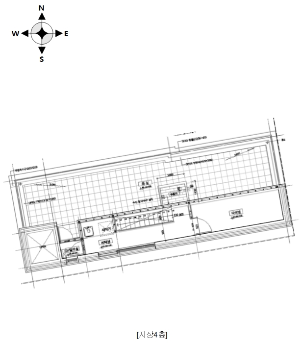
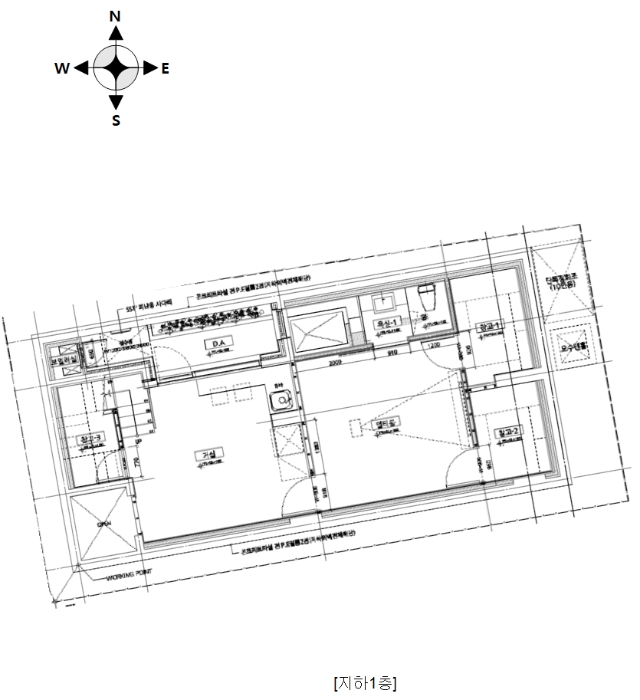
건물면적 [ 241.32㎡ (73평) ]
토지면적 [ 104.8㎡ (31.7평) ]
시세를 반영한 감정가 2,189,384,000에서
1회 유찰되어 감정가 대비 80%
최저가 1,751,507,200부터
입찰에 참여할 수 있습니다.
입찰보증금은 최저가 10%
175,150,720이며,
서울서부지방법원 경매6계에서
2025-08-19(10:00)
진행 예정입니다.
| 소재지 | [지번] 서울특별시 마포구 서교동 381-27 소담헌 [도로명 주소] 서울특별시 마포구 월드컵로8길 40-10 소담헌 |
||||
|---|---|---|---|---|---|
| 용도 | 주택 | 채권자 | ㈜** | 감정가 | 2,189,384,000 |
| 건물면적 | 241.32㎡ (73평) | 채무자 | 양**외1명 | 최저가 | (80%) 1,751,507,200 |
| 토지면적 | 104.8㎡ (31.7평) | 소유자 | 양** | 보증금 | (10%) 175,150,720 |
| 매각대상 | 위반건축물 | 경매종류 | 임의경매 | 사건접수일 | 2024-08-12 |
| 최초경매일 | 2025-08-19 | 배당종기일 | 2024-10-28 | 경매개시일 | 2024-08-12 |
| 주의사항 | ☞ 여기 눌러 무료상담 받아보기 | ||||
기일내역
| 회차 | 매각기일 | 최저매각금액 | 결과 |
|---|---|---|---|
| 신건 | 2025-07-15 | 2,189,384,000 | 유찰 |
| 2차 | 2025-08-19 | 1,751,507,200 |
임차인현황
| 임차인 | 점유현황 | 전입/확정/배당 |
|---|---|---|
| 조사된 임차인 내역 없음 | ||



















