사건번호 2024 타경 135209
본건은 서울특별시 금천구 시흥동 814-51 사과나무
소재하는 다가구(원룸등)경매 물건의 포스팅입니다.
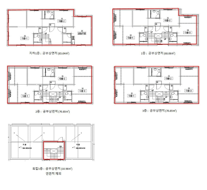
건물면적 [ 305.78㎡ (92.5평) ]
토지면적 [ 149.1㎡ (45.1평) ]
시세를 반영한 감정가 1,515,681,480에서
1회 유찰되어 감정가 대비 80%
최저가 1,212,545,000부터
입찰에 참여할 수 있습니다.
입찰보증금은 최저가 10%
121,254,500이며,
서울남부지방법원 경매12계에서
2025-07-29(10:00)
진행 예정입니다.
| 소재지 | [지번] 서울특별시 금천구 시흥동 814-51 사과나무 [도로명 주소] 서울특별시 금천구 독산로28가길 15-2(시흥동) 사과나무 |
||||
|---|---|---|---|---|---|
| 용도 | 다가구(원룸등) | 채권자 | 경** | 감정가 | 1,515,681,480 |
| 건물면적 | 305.78㎡ (92.5평) | 채무자 | 전** | 최저가 | (80%) 1,212,545,000 |
| 토지면적 | 149.1㎡ (45.1평) | 소유자 | 전**외1명 | 보증금 | (10%) 121,254,500 |
| 매각대상 | 재개발 | 경매종류 | 임의경매 | 사건접수일 | 2024-09-05 |
| 최초경매일 | 2025-07-29 | 배당종기일 | 2024-12-11 | 경매개시일 | 2024-09-09 |
| 주의사항 | ☞ 여기 눌러 무료상담 받아보기 | ||||
기일내역
| 회차 | 매각기일 | 최저매각금액 | 결과 |
|---|---|---|---|
| 신건 | 2025-06-24 | 1,515,681,480 | 유찰 |
| 2차 | 2025-07-29 | 1,212,545,000 |
임차인현황
| 임차인 | 점유현황 | 전입/확정/배당 |
|---|---|---|
| i** | 주거임차인 주거용 202호2020.10.30~2024.10.29 |
전입 : 2020-10-21 / 확정 : 2020-10-21 / 배당 : 2024-09-26 |
| i** | 주거임차인 주거용 403호2020.11.06~2024.11.05 |
전입 : 2020-10-21 / 확정 : 2020-10-21 / 배당 : 2024-09-26 |
| i** | 주거임차인 주거용 301호2020.10.23~현재 |
전입 : 2020-10-23 / 확정 : 2020-10-23 / 배당 : 2024-11-11 |
| i** | 주거임차인 주거용 401호2020.11.04~2024.11.03 |
전입 : 2020-11-05 / 확정 : 2020-10-20 / 배당 : 2024-09-25 |
| i** | 주거임차인 주거용 103호2020.11.07~ |
전입 : 2020-11-09 / 확정 : 2020-10-22 / 배당 : 2024-09-24 |
| i** | 주거임차인 주거용 101호2020.11.20~2024.11.19 |
전입 : 2020-11-23 / 확정 : 2020-11-02 / 배당 : 2024-09-26 |
| i** | 주거임차인 주거용 303호2020.11.23~2024.11.22 |
전입 : 2020-11-23 / 확정 : 2020-10-23 / 배당 : 2024-10-18 |
| i** | 주거임차인 주거용 402호2021.01.02.~2025.01.02. |
전입 : 2021-01-04 / 확정 : 2020-12-11 / 배당 : 2024-10-08 |
| i** | 주거임차인 주거용 102호2021.02.23~2025.02.22 |
전입 : 2021-02-25 / 확정 : 2021-01-26 / 배당 : 2024-09-25 |
| i** | 주거임차인 주거용 302호2023.01.30~2025.01.29 |
전입 : 2023-02-06 / 확정 : 2023-01-09 / 배당 : 2024-09-30 |
| i** | 주거임차인 주거용 201호2023.05.31~2025.05.31 |
전입 : 2023-05-31 / 확정 : 2023-04-24 / 배당 : 2024-12-03 |
| i** | 주거임차인 주거용 203호2024.06.12~2026.06.12 |
전입 : 2024-06-12 / 확정 : 2024-05-16 / 배당 : 2024-09-23 |



























