사건번호 2024 타경 77404
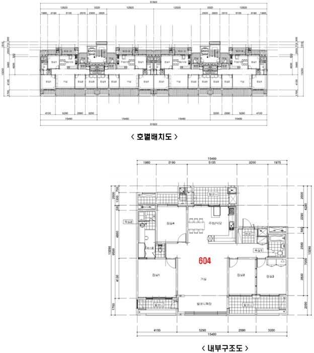
본건은 경기도 오산시 청호동 321 오산자이 제114동 제6층 제604호
소재하는 아파트경매 물건의 포스팅입니다.
건물면적 [ 123.42㎡ (37.33평) ]
대지권 [ 79.52㎡ (24.05평) ]
시세를 반영한 감정가 411,000,000에서
신건으로 감정가 대비 100%
최저가 411,000,000부터
입찰에 참여할 수 있습니다.
입찰보증금은 최저가 10%
41,100,000이며,
수원지방법원 경매14계에서
2025-07-23(10:00)
진행 예정입니다.
| 소재지 | [지번] 경기도 오산시 청호동 321 오산자이 제114동 제6층 제604호 [도로명 주소] 경기도 오산시 동부대로 332-14 오산자이 제114동 제6층 제604호 |
||||
|---|---|---|---|---|---|
| 용도 | 아파트 | 채권자 | 한**외1명 | 감정가 | 411,000,000 |
| 건물면적 | 123.42㎡ (37.33평) | 채무자 | 이** | 최저가 | (100%) 411,000,000 |
| 대지권 | 79.52㎡ (24.05평) | 소유자 | 이** | 보증금 | (10%) 41,100,000 |
| 매각대상 | 공시가격2~3억 | 경매종류 | 임의경매 | 사건접수일 | 2024-07-01 |
| 최초경매일 | 2025-07-23 | 배당종기일 | 2024-09-19 | 경매개시일 | 2024-07-02 |
| 주의사항 | ☞ 여기 눌러 무료상담 받아보기 | ||||
기일내역
| 회차 | 매각기일 | 최저매각금액 | 결과 |
|---|---|---|---|
| 신건 | 2025-07-23 | 411,000,000 |
임차인현황
| 임차인 | 점유현황 | 전입/확정/배당 |
|---|---|---|
| 조사된 임차인 내역 없음 | ||















