금천아파트형공장경매 금천구 가산동 319-8 에이스한솔타워 제12층 제1201호 №2024 타경 5360(1)

차별화된 5단계 맞춤형 경매 서비스 - 더블옥션

법원경매전문 (주)더블옥션은 보증보험 가입 및 법원 매수대리 등록업체로 안전하고 책임있는 컨설팅을 진행합니다. 등록번호(02-17-3)

사건번호 2024 타경 5360(1)

본건은 서울특별시 금천구 가산동 319-8 에이스한솔타워 제12층 제1201호
소재하는 아파트형공장경매 물건의 포스팅입니다.

건물면적 [ 116.15㎡ (35.14평) ]
대지권 [ 27.72㎡ (8.39평) ]

시세를 반영한 감정가 503,000,000에서
2회 유찰되어 감정가 대비 64%
최저가 321,920,000부터
입찰에 참여할 수 있습니다.

입찰보증금은 최저가 10%
32,192,000이며,
서울남부지방법원 경매3계에서
2025-08-05(10:00)
진행 예정입니다.

소재지 [지번] 서울특별시 금천구 가산동 319-8 에이스한솔타워 제12층 제1201호
[도로명 주소] 서울특별시 금천구 가산디지털1로 58 에이스한솔타워 제12층 제1201호
용도 아파트형공장 채권자 ㈜** 감정가 503,000,000
건물면적 116.15㎡ (35.14평) 채무자 장** 최저가 (64%) 321,920,000
대지권 27.72㎡ (8.39평) 소유자 장** 보증금 (10%) 32,192,000
매각대상 별도등기 경매종류 임의경매 사건접수일 2024-10-16
최초경매일 2025-08-05 배당종기일 2025-01-23 경매개시일 2024-10-18
주의사항 ☞ 여기 눌러 무료상담 받아보기

기일내역

회차 매각기일 최저매각금액 결과
신건 2025-05-14 503,000,000 유찰
2차 2025-06-25 402,400,000 유찰
3차 2025-08-05 321,920,000
정확한 권리 분석, 꼼꼼한 현장 조사, 예상 낙찰가 제안, 대출 연계, 점유자 이전 - 더블옥션

임차인현황

임차인 점유현황 전입/확정/배당
i** 상가임차인
점포 1201호미상
전입 : X / 확정 : X / 배당 : X
더블옥션은 법원 등록 및 보증 보험 가입 업체로 안전하고 성공적인 당신의 비즈니스를 지원합니다. - 더블옥션

건물 전경
공동 출입문
회사 표시판
출입문
12층 입점 업
본건 전경
본건 공동현관
본건 주위환경-
본건
본건 주위환경-
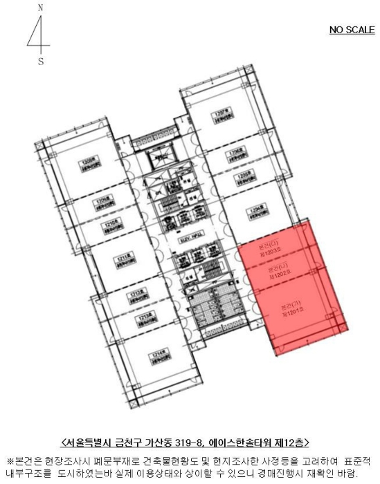
건 물 개 황 도
위 치 도
광 역 위 치 도
부동산 경매 전문기업 - 더블옥션

Related Posts