동해시설경매 동해시 발한동 218-2 №2024 타경 1773

차별화된 5단계 맞춤형 경매 서비스 - 더블옥션

법원경매전문 (주)더블옥션은 보증보험 가입 및 법원 매수대리 등록업체로 안전하고 책임있는 컨설팅을 진행합니다. 등록번호(02-17-3)

사건번호 2024 타경 1773

본건은 강원특별자치도 동해시 발한동 218-2
소재하는 근린시설경매 물건의 포스팅입니다.

건물면적 [ 13463.7㎡ (4072.75평) ]
토지면적 [ 3750㎡ (1134.37평) ]

시세를 반영한 감정가 17,253,244,990에서
신건으로 감정가 대비 100%
최저가 17,253,244,990부터
입찰에 참여할 수 있습니다.

입찰보증금은 최저가 10%
1,725,324,499이며,
강릉지원 경매3계에서
2025-07-21(10:00)
진행 예정입니다.

소재지 [지번] 강원특별자치도 동해시 발한동 218-2
[도로명 주소] 강원도 동해시 발한로 170
용도 근린시설 채권자 진** 감정가 17,253,244,990
건물면적 13463.7㎡ (4072.75평) 채무자 ㈜** 최저가 (100%) 17,253,244,990
토지면적 3750㎡ (1134.37평) 소유자 ㈜** 보증금 (10%) 1,725,324,499
매각대상 유치권 경매종류 임의경매 사건접수일 2024-11-01
최초경매일 2025-07-21 배당종기일 2025-02-06 경매개시일 2024-11-01
주의사항 ☞ 여기 눌러 무료상담 받아보기

기일내역

회차 매각기일 최저매각금액 결과
신건 2025-07-21 17,253,244,990
정확한 권리 분석, 꼼꼼한 현장 조사, 예상 낙찰가 제안, 대출 연계, 점유자 이전 - 더블옥션

임차인현황

임차인 점유현황 전입/확정/배당
조사된 임차인 내역 없음
더블옥션은 법원 등록 및 보증 보험 가입 업체로 안전하고 성공적인 당신의 비즈니스를 지원합니다. - 더블옥션

제시외 건물㉠
제시외 건물㉡
건물안에 표기된 유치권 현수막
기호1번 지상 위 타인 소유의 컨테이너
기호1,2번 남동측에서 촬영
기호2번 4층 출입문 입구에 표기된 유치권자 연락처
기호1,2번 북측에서 촬영

본건 북서층 전경
가 격 참 고 도
가 격 참 고 도
본건 남동측 전경
본건 3층 내부 전경
본건 3층 내부 전경
본건 4층 내부 전경
본건 4층 외부전경
본건 5층 내부 전경
본건 5층 내부 전경
본건 6층 내부 전경
본건 6층 내부 전경
본건 7층 내부전경
본건 7층 외부 전경
옥상층 제시외(ㄱ) 계단실
옥상층 제시외(ㄱ) 계단실
옥상층 제시외 GHP설비(22기)
옥상층 제시외 GHP설비(22기)
승강기 설비(3층) 중앙
승강기 설비(3층) 서측
광 역 위 치 도
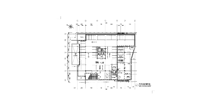
지적 및 건물개황도
지적 및 건물개황도
지적 및 건물개황도
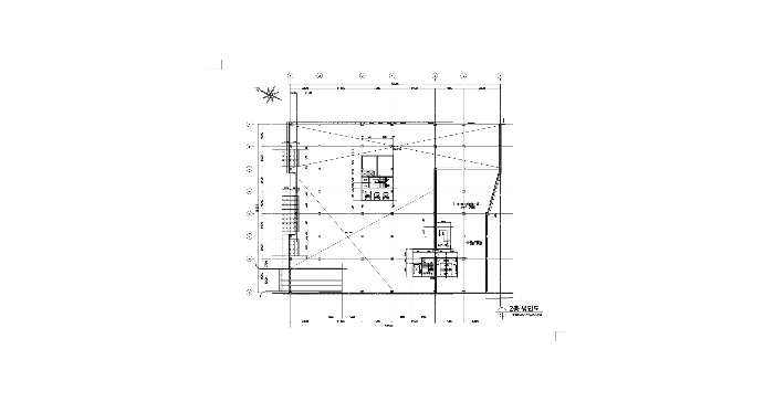
지적 및 건물개황도
지적 및 건물개황도
지적 및 건물개황도
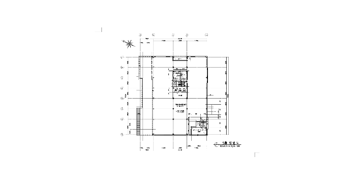
지적 및 건물개황도
지적 및 건물개황도
지적 및 건물개황도
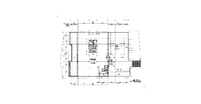
지적 및 건물개황도
지적 및 건물개황도
부동산 경매 전문기업 - 더블옥션

Related Posts