사건번호 2024 타경 1430
본건은 경기도 안양시 만안구 병목안로 306외 2필지
소재하는 문화및집회시설경매 물건의 포스팅입니다.
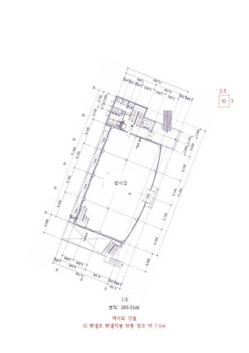
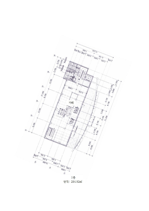
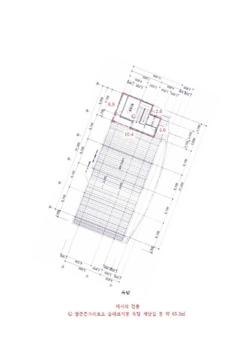
건물면적 [ 1269.47㎡ (384.01평) ]
토지면적 [ 4571㎡ (1382.72평) ]
시세를 반영한 감정가 7,129,874,680에서
1회 유찰되어 감정가 대비 80%
최저가 5,703,900,000부터
입찰에 참여할 수 있습니다.
입찰보증금은 최저가 10%
570,390,000이며,
안양지원 경매1계에서
2025-07-22(10:00)
진행 예정입니다.
| 소재지 | [지번] 경기도 안양시 만안구 병목안로 306외 2필지 [도로명 주소] 경기도 안양시 만안구 병목안로 306 |
||||
|---|---|---|---|---|---|
| 용도 | 문화및집회시설 | 채권자 | 윤**외1명 | 감정가 | 7,129,874,680 |
| 건물면적 | 1269.47㎡ (384.01평) | 채무자 | 심**외1명 | 최저가 | (80%) 5,703,900,000 |
| 토지면적 | 4571㎡ (1382.72평) | 소유자 | 장** | 보증금 | (10%) 570,390,000 |
| 매각대상 | 맹지, 대항력있는임차인 | 경매종류 | 임의경매 | 사건접수일 | 2024-06-18 |
| 최초경매일 | 2025-07-22 | 배당종기일 | 2024-09-10 | 경매개시일 | 2024-06-28 |
| 주의사항 | ☞ 여기 눌러 무료상담 받아보기 | ||||
기일내역
| 회차 | 매각기일 | 최저매각금액 | 결과 |
|---|---|---|---|
| 신건 | 2025-06-17 | 7,129,874,680 | 유찰 |
| 2차 | 2025-07-22 | 5,703,900,000 |
임차인현황
| 임차인 | 점유현황 | 전입/확정/배당 |
|---|---|---|
| i** | 상가임차인 점포 돌석도예전시장 2층 394.72㎡2019.07.01.~2021.07.01.(2024.02.27.인도집행완료) |
전입 : / 확정 : X / 배당 : X |
































