사건번호 2024 타경 63850
본건은 충청북도 괴산군 청천면 도원리 489-47 외 2필지
소재하는 숙박시설경매 물건의 포스팅입니다.
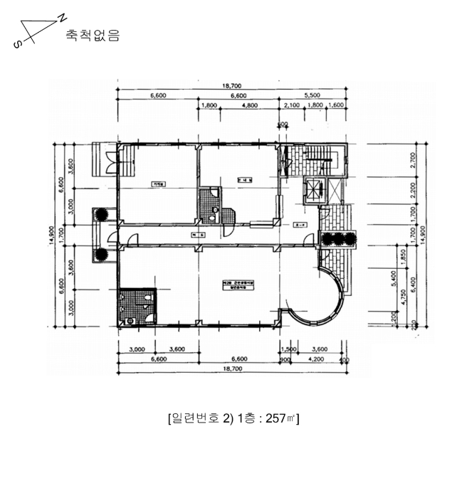
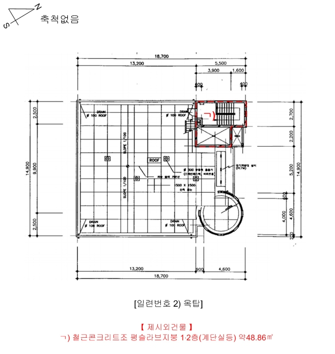
건물면적 [ 1220.86㎡ (369.31평) ]
토지면적 [ 1355㎡ (409.89평) ]
시세를 반영한 감정가 1,088,345,760에서
2회 유찰되어 감정가 대비 64%
최저가 696,540,000부터
입찰에 참여할 수 있습니다.
입찰보증금은 최저가 10%
69,654,000이며,
청주지방법원 경매7계에서
2025-07-17(10:00)
진행 예정입니다.
| 소재지 | [지번] 충청북도 괴산군 청천면 도원리 489-47 외 2필지 [도로명 주소] 충북 괴산군 청천면 화양로 574 |
||||
|---|---|---|---|---|---|
| 용도 | 숙박시설 | 채권자 | 동** | 감정가 | 1,088,345,760 |
| 건물면적 | 1220.86㎡ (369.31평) | 채무자 | 안** | 최저가 | (64%) 696,540,000 |
| 토지면적 | 1355㎡ (409.89평) | 소유자 | 안** | 보증금 | (10%) 69,654,000 |
| 매각대상 | 경매종류 | 임의경매 | 사건접수일 | 2024-11-26 | |
| 최초경매일 | 2025-07-17 | 배당종기일 | 2025-03-11 | 경매개시일 | 2024-11-27 |
| 주의사항 | ☞ 여기 눌러 무료상담 받아보기 | ||||
기일내역
| 회차 | 매각기일 | 최저매각금액 | 결과 |
|---|---|---|---|
| 신건 | 2025-05-08 | 1,088,345,760 | 유찰 |
| 2차 | 2025-06-12 | 870,676,000 | 유찰 |
| 3차 | 2025-07-17 | 696,540,000 |
임차인현황
| 임차인 | 점유현황 | 전입/확정/배당 |
|---|---|---|
| i** | 주거임차인 | 전입 : 2019-12-23 / 확정 : X / 배당 : X |
| i** | 상가임차인 | 전입 : / 확정 : X / 배당 : X |
| i** | 주거임차인 | 전입 : X / 확정 : X / 배당 : X |
| i** | 주거임차인 | 전입 : X / 확정 : X / 배당 : X |


































