사건번호 2024 타경 4261
본건은 대전광역시 동구 가양동 164-33 외 1필지
소재하는 근린주택경매 물건의 포스팅입니다.
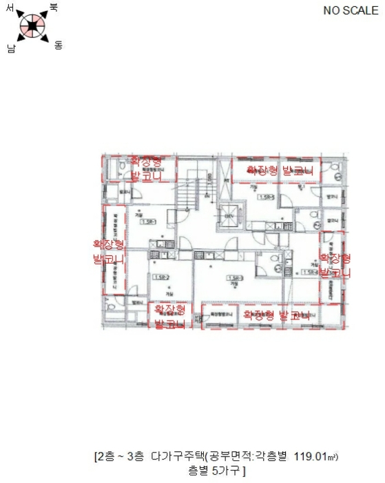
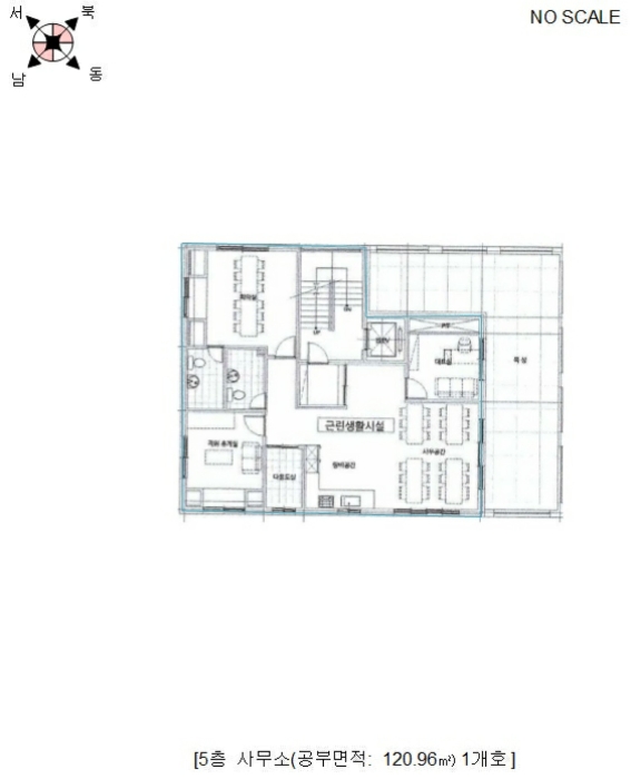
건물면적 [ 560.57㎡ (169.57평) ]
토지면적 [ 291㎡ (88.03평) ]
시세를 반영한 감정가 1,474,145,900에서
1회 유찰되어 감정가 대비 70%
최저가 1,031,902,000부터
입찰에 참여할 수 있습니다.
입찰보증금은 최저가 10%
103,190,200이며,
대전지방법원 경매9계에서
2025-07-16(10:00)
진행 예정입니다.
| 소재지 | [지번] 대전광역시 동구 가양동 164-33 외 1필지 [도로명 주소] 대전광역시 동구 동대전로256번길 100 |
||||
|---|---|---|---|---|---|
| 용도 | 근린주택 | 채권자 | 대** | 감정가 | 1,474,145,900 |
| 건물면적 | 560.57㎡ (169.57평) | 채무자 | 오** | 최저가 | (70%) 1,031,902,000 |
| 토지면적 | 291㎡ (88.03평) | 소유자 | 오** | 보증금 | (10%) 103,190,200 |
| 매각대상 | 경매종류 | 임의경매 | 사건접수일 | 2024-04-08 | |
| 최초경매일 | 2025-07-16 | 배당종기일 | 2024-07-15 | 경매개시일 | 2024-04-11 |
| 주의사항 | ☞ 여기 눌러 무료상담 받아보기 | ||||
기일내역
| 회차 | 매각기일 | 최저매각금액 | 결과 |
|---|---|---|---|
| 신건 | 2025-06-11 | 1,474,145,900 | 유찰 |
| 2차 | 2025-07-16 | 1,031,902,000 |
임차인현황
| 임차인 | 점유현황 | 전입/확정/배당 |
|---|---|---|
| i** | 주거임차인 주거용 404호2019.02.16.부터현재까지 |
전입 : 2019-02-14 / 확정 : 2019-02-14 / 배당 : 2024-04-26 |
| i** | 주거임차인 주거용 202호2019.08.26.부터현재까지 |
전입 : 2019-10-01 / 확정 : 2019-08-26 / 배당 : 2024-04-25 |
| i** | 상가임차인 점포 1층 |
전입 : / 확정 : X / 배당 : X |
| i** | 주거임차인 주거용 201호2021.02.20.부터2025.02.21.까지 |
전입 : 2021-02-22 / 확정 : 2021-01-27 / 배당 : 2024-04-24 |
| i** | 주거임차인 주거용 403호2022.02.07.부터 2024.02.06.까지 |
전입 : 2022-02-09 / 확정 : 2021-12-13 / 배당 : 2024-06-04 |
| i** | 주거임차인 주거용 203호2022.02.21.부터 2024.02.20.까지 |
전입 : 2022-02-18 / 확정 : 2021-12-13 / 배당 : 2024-06-04 |
| i** | 주거임차인 주거용 401호2019.03.22.부터 현재까지 |
전입 : 2022-04-11 / 확정 : 2024-06-11 / 배당 : 2024-06-11 |
| i** | 주거임차인 주거용 305호 |
전입 : 2022-06-09 / 확정 : X / 배당 : X |
| i** | 주거임차인 주거용 304호 |
전입 : 2022-10-12 / 확정 : X / 배당 : X |
| i** | 주거임차인 주거용 304호2022.10.13.부터2024.10.12.까지 |
전입 : 2022-10-12 / 확정 : 2022-09-20 / 배당 : 2024-04-25 |
| i** | 주거임차인 주거용 301호2022.11.14.부터2024.11.13. |
전입 : 2022-11-15 / 확정 : 2022-11-17 / 배당 : 2024-05-27 |
| i** | 주거임차인 주거용 204호2022.12.03.부터 현재까지 |
전입 : 2022-12-05 / 확정 : 2023-12-05 / 배당 : 2024-04-22 |
| i** | 주거임차인 주거용 302호 |
전입 : 2023-01-06 / 확정 : X / 배당 : X |
| i** | 주거임차인 주거용 402호2023.06.01.부터 2025.06.01.까지 |
전입 : 2023-06-02 / 확정 : 2023-04-25 / 배당 : 2024-04-23 |
| i** | 주거임차인 주거용 303호2023.07.21.부터2025.07.21.까지 |
전입 : 2023-07-27 / 확정 : 2023-06-29 / 배당 : 2024-05-23 |
| i** | 주거임차인 주거용 501호 |
전입 : X / 확정 : X / 배당 : X |






















































