사건번호 2023 타경 110900
본건은 서울특별시 동작구 사당동 425-13
소재하는 다가구(원룸등)경매 물건의 포스팅입니다.
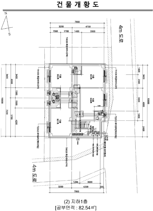
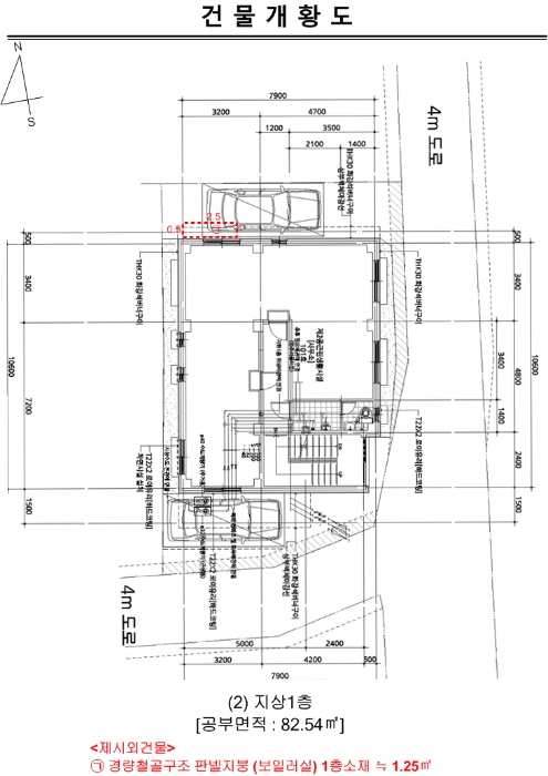
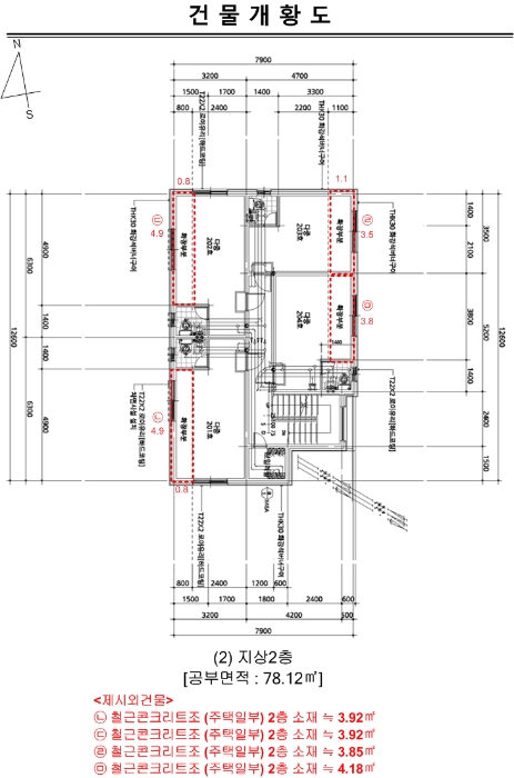
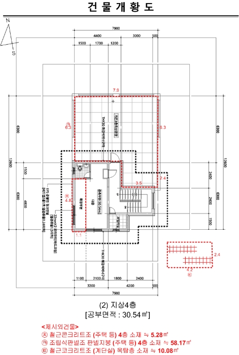
건물면적 [ 458.38㎡ (138.66평) ]
토지면적 [ 168㎡ (50.82평) ]
시세를 반영한 감정가 2,829,184,260에서
1회 유찰되어 감정가 대비 80%
최저가 2,263,347,000부터
입찰에 참여할 수 있습니다.
입찰보증금은 최저가 10%
226,334,700이며,
서울중앙지방법원 경매21계에서
2025-07-15(10:00)
진행 예정입니다.
| 소재지 | [지번] 서울특별시 동작구 사당동 425-13 [도로명 주소] 서울 동작구 사당로22길 80 |
||||
|---|---|---|---|---|---|
| 용도 | 다가구(원룸등) | 채권자 | 낙** | 감정가 | 2,829,184,260 |
| 건물면적 | 458.38㎡ (138.66평) | 채무자 | 오** | 최저가 | (80%) 2,263,347,000 |
| 토지면적 | 168㎡ (50.82평) | 소유자 | 이** | 보증금 | (10%) 226,334,700 |
| 매각대상 | 경매종류 | 임의경매 | 사건접수일 | 2023-08-01 | |
| 최초경매일 | 2025-07-15 | 배당종기일 | 2023-10-18 | 경매개시일 | 2023-08-02 |
| 주의사항 | ☞ 여기 눌러 무료상담 받아보기 | ||||
기일내역
| 회차 | 매각기일 | 최저매각금액 | 결과 |
|---|---|---|---|
| 신건 | 2024-10-22 | 2,829,184,260 | 유찰 |
| 2024-11-19 | 2,263,347,000 | 변경 | |
| 2차 | 2025-07-15 | 2,263,347,000 |
임차인현황
| 임차인 | 점유현황 | 전입/확정/배당 |
|---|---|---|
| i** | 주거임차인 203호 |
전입 : 2019-09-26 / 확정 : 2019-09-10 / 배당 : 2023-09-06 |
| i** | 주거임차인 미상 |
전입 : 2020-02-12 / 확정 : X / 배당 : X |
| i** | 주거임차인 비02호 |
전입 : 2020-02-17 / 확정 : 2020-01-17 / 배당 : 2023-10-11 |
| i** | 주거임차인 401호 |
전입 : 2020-06-04 / 확정 : 2020-04-20 / 배당 : 2023-08-18 |
| i** | 주거임차인 B04호 |
전입 : 2020-11-16 / 확정 : 2020-10-26 / 배당 : 2023-09-06 |
| i** | 주거임차인 103호 |
전입 : 2021-03-08 / 확정 : 2022-03-03 / 배당 : 2023-10-04 |
| i** | 주거임차인 404호 |
전입 : 2021-07-26 / 확정 : 2021-07-26 / 배당 : 2023-09-12 |
| i** | 주거임차인 301호 |
전입 : 2021-10-05 / 확정 : 2021-09-06 / 배당 : 2023-09-08 |
| i** | 주거임차인 304호 |
전입 : 2021-10-27 / 확정 : 2021-09-01 / 배당 : 2023-10-06 |
| i** | 주거임차인 101호 |
전입 : 2021-12-10 / 확정 : 2021-12-10 / 배당 : 2023-08-29 |
| i** | 주거임차인 202호 |
전입 : 2021-12-17 / 확정 : X / 배당 : X |
| i** | 주거임차인 402호 |
전입 : 2021-12-20 / 확정 : 2021-12-26 / 배당 : 2023-08-23 |
| i** | 주거임차인 403호 |
전입 : 2022-01-04 / 확정 : 2022-01-04 / 배당 : 2023-08-11 |
| i** | 주거임차인 201호 |
전입 : 2022-01-05 / 확정 : 2021-11-29 / 배당 : 2023-08-25 |
| i** | 주거임차인 303호 |
전입 : 2022-02-11 / 확정 : 2022-02-11 / 배당 : 2023-10-06 |
| i** | 주거임차인 204호 |
전입 : 2022-03-04 / 확정 : 2022-02-16 / 배당 : 2024-03-04 |
| i** | 주거임차인 102호 |
전입 : 2022-03-21 / 확정 : 2022-03-21 / 배당 : 2023-08-29 |
| i** | 주거임차인 302호 |
전입 : 2022-11-28 / 확정 : 2022-10-17 / 배당 : 2023-08-25 |
| i** | 주거임차인 비03호 |
전입 : 2022-12-26 / 확정 : 2022-11-24 / 배당 : 2023-10-04 |























