사건번호 2024 타경 30074
본건은 전북특별자치도 임실군 임실읍 이도리 560-18 주1동
소재하는 근린주택경매 물건의 포스팅입니다.
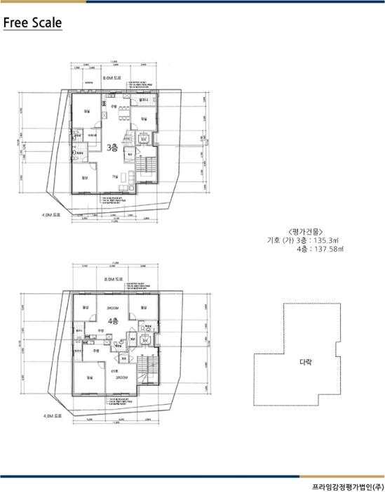
건물면적 [ 539.16㎡ (163.1평) ]
토지면적 [ 261㎡ (78.95평) ]
시세를 반영한 감정가 794,387,400에서
1회 유찰되어 감정가 대비 70%
최저가 556,071,000부터
입찰에 참여할 수 있습니다.
입찰보증금은 최저가 10%
55,607,100이며,
전주지방법원 경매5계에서
2025-07-14(10:00)
진행 예정입니다.
| 소재지 | [지번] 전북특별자치도 임실군 임실읍 이도리 560-18 주1동 [도로명 주소] 전라북도 임실군 임실읍 호반로 10 주1동 |
||||
|---|---|---|---|---|---|
| 용도 | 근린주택 | 채권자 | 노** | 감정가 | 794,387,400 |
| 건물면적 | 539.16㎡ (163.1평) | 채무자 | 유** | 최저가 | (70%) 556,071,000 |
| 토지면적 | 261㎡ (78.95평) | 소유자 | 유** | 보증금 | (10%) 55,607,100 |
| 매각대상 | 유치권 | 경매종류 | 임의경매 | 사건접수일 | 2024-01-03 |
| 최초경매일 | 2025-07-14 | 배당종기일 | 2024-04-08 | 경매개시일 | 2024-01-04 |
| 주의사항 | ☞ 여기 눌러 무료상담 받아보기 | ||||
기일내역
| 회차 | 매각기일 | 최저매각금액 | 결과 |
|---|---|---|---|
| 신건 | 2024-05-13 | 794,387,400 | 유찰 |
| 2024-06-24 | 556,071,000 | 변경 | |
| 2024-08-12 | 556,071,000 | 변경 | |
| 2차 | 2025-07-14 | 556,071,000 |
임차인현황
| 임차인 | 점유현황 | 전입/확정/배당 |
|---|---|---|
| i** | 주거임차인 302호 |
전입 : 2022-02-28 / 확정 : 2022-03-03 / 배당 : 2024-03-25 |
| i** | 주거임차인 3층 301호 |
전입 : 2022-02-28 / 확정 : 2022-02-28 / 배당 : 2024-03-04 |
| i** | 상가임차인 목록2. 3층 301호 |
전입 : / 확정 : 2022-02-28 / 배당 : 2024-02-14 |
| i** | 주거임차인 401호 |
전입 : 2023-04-13 / 확정 : 2023-04-13 / 배당 : 2026-02-26 |
| i** | 주거임차인 4층137.58㎡ 전부 |
전입 : X / 확정 : X / 배당 : X |



































