사건번호 2024 타경 5974
본건은 서울특별시 도봉구 창동 601-25
소재하는 근린주택경매 물건의 포스팅입니다.
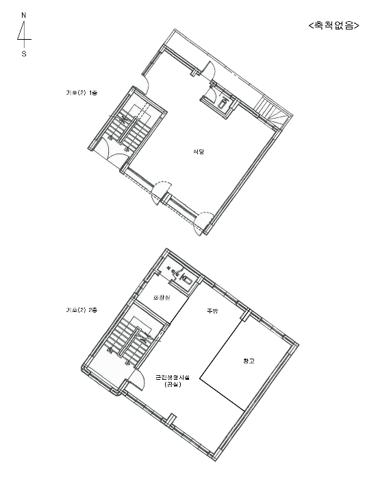
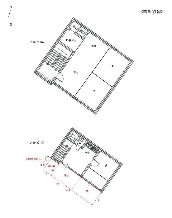
건물면적 [ 327.94㎡ (99.2평) ]
토지면적 [ 98.5㎡ (29.8평) ]
시세를 반영한 감정가 950,506,600에서
1회 유찰되어 감정가 대비 80%
최저가 760,405,000부터
입찰에 참여할 수 있습니다.
입찰보증금은 최저가 10%
76,040,500이며,
서울북부지방법원 경매7계에서
2025-07-15(10:00)
진행 예정입니다.
| 소재지 | [지번] 서울특별시 도봉구 창동 601-25 [도로명 주소] 서울특별시 도봉구 덕릉로59길 6 |
||||
|---|---|---|---|---|---|
| 용도 | 근린주택 | 채권자 | 이** | 감정가 | 950,506,600 |
| 건물면적 | 327.94㎡ (99.2평) | 채무자 | 김** | 최저가 | (80%) 760,405,000 |
| 토지면적 | 98.5㎡ (29.8평) | 소유자 | 김** | 보증금 | (10%) 76,040,500 |
| 매각대상 | 공시가격1~2억, 대항력있는임차인 | 경매종류 | 강제경매 | 사건접수일 | 2024-11-20 |
| 최초경매일 | 2025-07-15 | 배당종기일 | 2025-03-04 | 경매개시일 | 2024-11-20 |
| 주의사항 | ☞ 여기 눌러 무료상담 받아보기 | ||||
기일내역
| 회차 | 매각기일 | 최저매각금액 | 결과 |
|---|---|---|---|
| 신건 | 2025-06-10 | 950,506,600 | 유찰 |
| 2차 | 2025-07-15 | 760,405,000 |
임차인현황
| 임차인 | 점유현황 | 전입/확정/배당 |
|---|---|---|
| i** | 주거임차인 기타 3층미상 |
전입 : 2017-02-28 / 확정 : X / 배당 : X |
| i** | 주거임차인 주거용 4층전체2020.10.30.부터2026.10.29.까지 |
전입 : 2020-10-26 / 확정 : 2020-09-28 / 배당 : 2025-02-28 |
| i** | 상가임차인 점포 전부(1층전부)2023.01.31.부터2025.01.31.까지 |
전입 : / 확정 : X / 배당 : 2025-01-07 |






















