군포아파트경매 군포시 산본동 1151-5 한양수리아파트 제804동 제15층 제1505호 №2024 타경 105417

차별화된 5단계 맞춤형 경매 서비스 - 더블옥션

법원경매전문 (주)더블옥션은 보증보험 가입 및 법원 매수대리 등록업체로 안전하고 책임있는 컨설팅을 진행합니다. 등록번호(02-17-3)

사건번호 2024 타경 105417

본건은 경기도 군포시 산본동 1151-5 한양수리아파트 제804동 제15층 제1505호
소재하는 아파트경매 물건의 포스팅입니다.

건물면적 [ 96.36㎡ (29.15평) ]
대지권 [ 46.44㎡ (14.05평) ]

시세를 반영한 감정가 627,000,000에서
1회 유찰되어 감정가 대비 80%
최저가 501,600,000부터
입찰에 참여할 수 있습니다.

입찰보증금은 최저가 10%
50,160,000이며,
안양지원 경매2계에서
2025-07-08(10:00)
진행 예정입니다.

소재지 [지번] 경기도 군포시 산본동 1151-5 한양수리아파트 제804동 제15층 제1505호
[도로명 주소] 경기도 군포시 수리산로 40 한양수리아파트 제804동 제15층 제1505호
용도 아파트 채권자 한** 감정가 627,000,000
건물면적 96.36㎡ (29.15평) 채무자 신** 최저가 (80%) 501,600,000
대지권 46.44㎡ (14.05평) 소유자 신** 보증금 (10%) 50,160,000
매각대상 공시가격3~4억 경매종류 임의경매 사건접수일 2024-06-14
최초경매일 2025-07-08 배당종기일 2025-01-02 경매개시일 2024-10-21
주의사항 ☞ 여기 눌러 무료상담 받아보기

기일내역

회차 매각기일 최저매각금액 결과
신건 2025-04-22 627,000,000 유찰
2025-06-03 501,600,000 변경
2차 2025-07-08 501,600,000
정확한 권리 분석, 꼼꼼한 현장 조사, 예상 낙찰가 제안, 대출 연계, 점유자 이전 - 더블옥션

임차인현황

임차인 점유현황 전입/확정/배당
i** 주거임차인
미상
전입 : 2018-08-16 / 확정 : X / 배당 : X
더블옥션은 법원 등록 및 보증 보험 가입 업체로 안전하고 성공적인 당신의 비즈니스를 지원합니다. - 더블옥션

건물 전경
건물 전경
공동 출입구
현관문 앞
현관문(안내문
본 건물 전경
본 건물 전경
공동 현관
아파트 단지입구
대문 현관
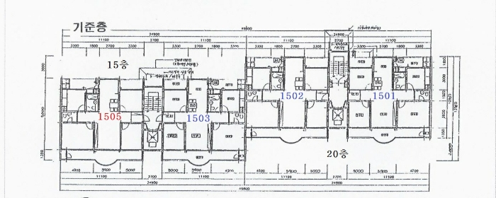
건물개황도(호별
위 치 도
위 치 도
광 역 위 치 도
내 부 구 조 도
부동산 경매 전문기업 - 더블옥션

Related Posts