양평주택경매 양평군 서종면 문호리 140-9 가동 №2024 타경 33585

차별화된 5단계 맞춤형 경매 서비스 - 더블옥션

법원경매전문 (주)더블옥션은 보증보험 가입 및 법원 매수대리 등록업체로 안전하고 책임있는 컨설팅을 진행합니다. 등록번호(02-17-3)

사건번호 2024 타경 33585

본건은 경기도 양평군 서종면 문호리 140-9 가동
소재하는 주택경매 물건의 포스팅입니다.

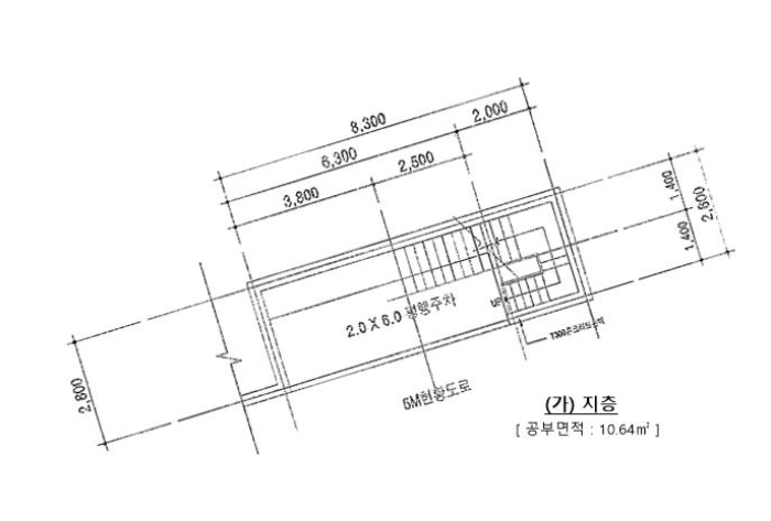
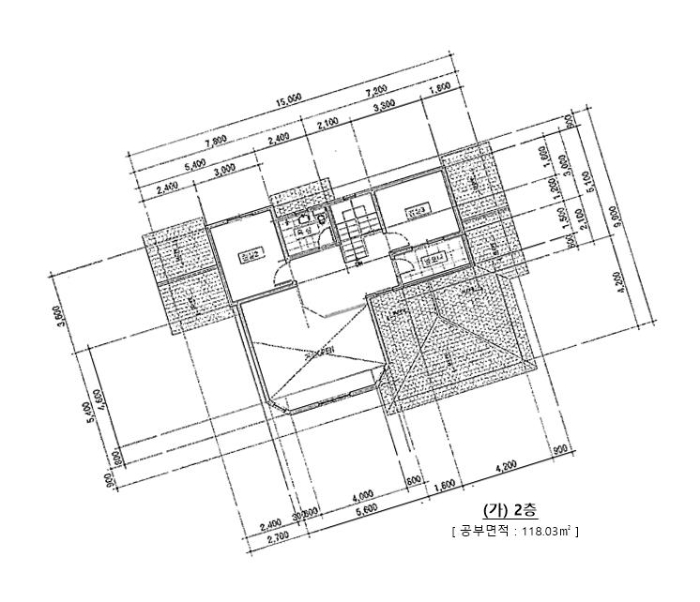
건물면적 [ 175.12㎡ (52.97평) ]
토지면적 [ 358㎡ (108.29평) ]

시세를 반영한 감정가 522,532,800에서
2회 유찰되어 감정가 대비 49%
최저가 256,041,000부터
입찰에 참여할 수 있습니다.

입찰보증금은 최저가 10%
25,604,100이며,
여주지원 경매5계에서
2025-07-16(10:00)
진행 예정입니다.

소재지 [지번] 경기도 양평군 서종면 문호리 140-9 가동
[도로명 주소] 경기도 양평군 서종면 마진배4길 46-1 가동
용도 주택 채권자 박** 감정가 522,532,800
건물면적 175.12㎡ (52.97평) 채무자 유** 최저가 (49%) 256,041,000
토지면적 358㎡ (108.29평) 소유자 유** 보증금 (10%) 25,604,100
매각대상 공시가격1~2억, 선순위전세권 경매종류 임의경매 사건접수일 2024-04-04
최초경매일 2025-07-16 배당종기일 2024-07-29 경매개시일 2024-04-23
주의사항 ☞ 여기 눌러 무료상담 받아보기

기일내역

회차 매각기일 최저매각금액 결과
신건 2025-02-26 522,532,800 유찰
2025-04-02 365,773,000 변경
2차 2025-06-11 365,773,000 유찰
3차 2025-07-16 256,041,000
정확한 권리 분석, 꼼꼼한 현장 조사, 예상 낙찰가 제안, 대출 연계, 점유자 이전 - 더블옥션

임차인현황

임차인 점유현황 전입/확정/배당
i** 주거임차인 전입 : X / 확정 : X / 배당 : X
i** 주거임차인 전입 : X / 확정 : X / 배당 : X
더블옥션은 법원 등록 및 보증 보험 가입 업체로 안전하고 성공적인 당신의 비즈니스를 지원합니다. - 더블옥션





















부동산 경매 전문기업 - 더블옥션

Related Posts