오산다가구(원룸등)경매 오산시 원동 750-13 №2024 타경 87685

차별화된 5단계 맞춤형 경매 서비스 - 더블옥션

법원경매전문 (주)더블옥션은 보증보험 가입 및 법원 매수대리 등록업체로 안전하고 책임있는 컨설팅을 진행합니다. 등록번호(02-17-3)

사건번호 2024 타경 87685

본건은 경기도 오산시 원동 750-13
소재하는 다가구(원룸등)경매 물건의 포스팅입니다.

건물면적 [ 613.92㎡ (185.71평) ]
토지면적 [ 189.5㎡ (57.32평) ]

시세를 반영한 감정가 1,236,356,120에서
신건으로 감정가 대비 100%
최저가 1,236,356,120부터
입찰에 참여할 수 있습니다.

입찰보증금은 최저가 10%
123,635,612이며,
수원지방법원 경매7계에서
2025-07-04(10:00)
진행 예정입니다.

소재지 [지번] 경기도 오산시 원동 750-13
[도로명 주소] 경기도 오산시 오산로240번길 23
용도 다가구(원룸등) 채권자 에** 감정가 1,236,356,120
건물면적 613.92㎡ (185.71평) 채무자 성** 최저가 (100%) 1,236,356,120
토지면적 189.5㎡ (57.32평) 소유자 성** 보증금 (10%) 123,635,612
매각대상 경매종류 임의경매 사건접수일 2024-09-04
최초경매일 2025-07-04 배당종기일 2024-11-19 경매개시일 2024-09-05
주의사항 ☞ 여기 눌러 무료상담 받아보기

기일내역

회차 매각기일 최저매각금액 결과
신건 2025-07-04 1,236,356,120
정확한 권리 분석, 꼼꼼한 현장 조사, 예상 낙찰가 제안, 대출 연계, 점유자 이전 - 더블옥션

임차인현황

임차인 점유현황 전입/확정/배당
i** 주거임차인
주거용 203호1차:2017.10.17.~2019.10.16.2차:2019.10.17.~2021.10.16.3차:2021.10.
전입 : 2017-10-11 / 확정 : 2017-10-11 / 배당 : 2024-09-20
i** 주거임차인
주거용 미상
전입 : 2018-12-14 / 확정 : X / 배당 : X
i** 주거임차인
주거용 미상
전입 : 2019-01-09 / 확정 : X / 배당 : X
i** 주거임차인
주거용 302호1차:2019.12.24.~2021.12.23.2차:2021.12.24.~2023.12.23.3차:2023.12.24~2025.12.23.
전입 : 2019-12-30 / 확정 : 2019-12-02 / 배당 : 2024-09-24
i** 주거임차인
주거용 501호2021.02.03.~2025.02.02
전입 : 2021-03-10 / 확정 : 2021-03-10 / 배당 : 2024-09-24
i** 주거임차인
주거용 402호1차:2021.03.15.~2023.03.14.2차:2023.03.21.~2025.3.20.
전입 : 2021-03-29 / 확정 : 2021-02-25 / 배당 : 2024-09-27
i** 주거임차인
주거용 301호1차:2021.06.05.~2023.06.28.2차:2023.06.05.~2024.06.04.3차:2024.06.05.~2025.06.04.
전입 : 2021-06-04 / 확정 : 2021-05-06 / 배당 : 2024-09-24
i** 주거임차인
주거용 601호2022.05.17.~2026.05.15.
전입 : 2022-05-18 / 확정 : 2022-05-18 / 배당 : 2024-09-23
i** 주거임차인
주거용 401호1차:2022.05.21.~2024.05.20., 2차:2024.05.21.~2026.05.20.
전입 : 2022-05-23 / 확정 : 2022-04-25 / 배당 : 2024-10-02
i** 주거임차인
주거용 303호2022.09.05.~2024.09.04.
전입 : 2022-09-06 / 확정 : 2022-08-17 / 배당 : 2024-09-19
i** 주거임차인
주거용 202호
전입 : 2022-10-07 / 확정 : 2022-10-07 / 배당 : X
i** 주거임차인
주거용 202호2022.10.8.~2024.10.7.
전입 : 2022-10-07 / 확정 : 2022-10-07 / 배당 : 2024-09-25
i** 주거임차인
주거용 201호2023.5.17.~2025.5.16.
전입 : 2023-05-19 / 확정 : 2023-04-19 / 배당 : 2024-09-25
더블옥션은 법원 등록 및 보증 보험 가입 업체로 안전하고 성공적인 당신의 비즈니스를 지원합니다. - 더블옥션

303호 호실 표시
303호 입구
501호 호실 표시
501호 입구
601호 호실 표시
601호 입구
203호 호실 표시
203호 입구
301호 호실 표시
301호~302호 입구
401호 호실 표시
401호 입구
402호 호실 표시
402호 입구
도로명 주소
건물 외관
공동 출입구
201호 호실 표시
201~202호 입구
지 번 약 도
오산시 원동 750-13 본건전경
1층 공동현관
2층
2층 202호 현관
3층
3층 302호 현관
4층
4층 401호 현관
5층
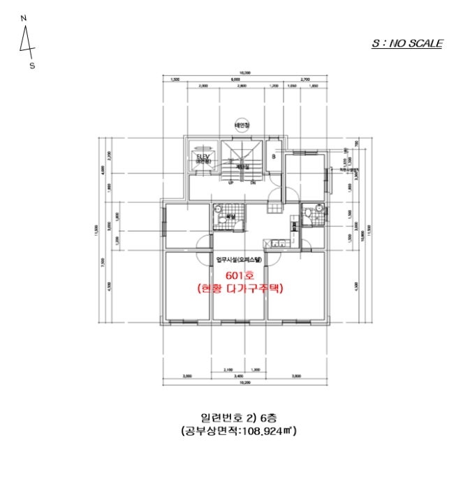
6층
옥탑1층
주변전경
오산시 원동 750-13 본건전경
1층 지상 주차장
2층 201호 현관
2층 203호 현관
3층 301호 현관
3층 303호 현관
4층 401호 현관
4층 402호 현관
5층 501호 현관
6층 601호 현관
옥탑1층 (물탱크실 등)
주변전경
건 물 개 황 도
건 물 개 황 도
건 물 개 황 도
건 물 개 황 도
건 물 개 황 도
건 물 개 황 도
건 물 개 황 도
위 치 도
위 치 도
지 적 개 황 도
부동산 경매 전문기업 - 더블옥션

Related Posts