사건번호 2023 타경 3495
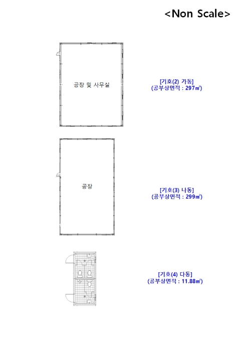
본건은 경기도 김포시 대곶면 석정리 358 가동외 2필지
소재하는 공장경매 물건의 포스팅입니다.
건물면적 [ 607.88㎡ (183.88평) ]
토지면적 [ 2065㎡ (624.66평) ]
시세를 반영한 감정가 1,899,428,000에서
신건으로 감정가 대비 100%
최저가 1,899,428,000부터
입찰에 참여할 수 있습니다.
입찰보증금은 최저가 10%
189,942,800이며,
부천지원 경매7계에서
2025-07-03(10:00)
진행 예정입니다.
| 소재지 | [지번] 경기도 김포시 대곶면 석정리 358 가동외 2필지 [도로명 주소] 경기도 김포시 대곶면 대곶로331번길 50 가동 |
||||
|---|---|---|---|---|---|
| 용도 | 공장 | 채권자 | 정**외1명 | 감정가 | 1,899,428,000 |
| 건물면적 | 607.88㎡ (183.88평) | 채무자 | ㈜** | 최저가 | (100%) 1,899,428,000 |
| 토지면적 | 2065㎡ (624.66평) | 소유자 | ㈜** | 보증금 | (10%) 189,942,800 |
| 매각대상 | 경매종류 | 임의경매 | 사건접수일 | 2023-07-03 | |
| 최초경매일 | 2025-07-03 | 배당종기일 | 2024-06-21 | 경매개시일 | 2023-07-25 |
| 주의사항 | ☞ 여기 눌러 무료상담 받아보기 | ||||
기일내역
| 회차 | 매각기일 | 최저매각금액 | 결과 |
|---|---|---|---|
| 신건 | 2025-07-03 | 1,899,428,000 |
임차인현황
| 임차인 | 점유현황 | 전입/확정/배당 |
|---|---|---|
| i** | 공장임차인 공장 나동2024.01.05~2026..01.04 |
전입 : / 확정 : X / 배당 : X |
| i** | 공장임차인 공장 나동2024.01.05~2026..01.04 |
전입 : / 확정 : X / 배당 : X |
| i** | 공장임차인 공장 가동2023.12.08~2025.12.07 |
전입 : / 확정 : X / 배당 : X |




































