사건번호 2024 타경 105981
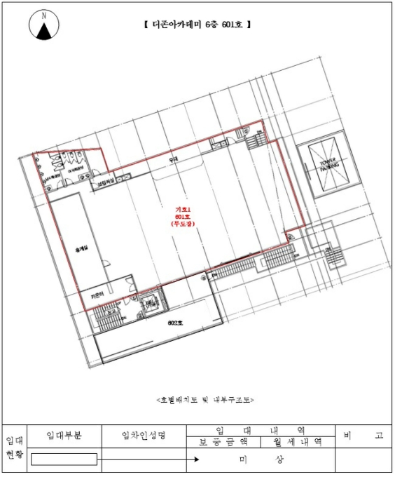
본건은 경기도 안양시 만안구 안양동 674-62 더존아카데미 제6층 제601호
소재하는 근린상가경매 물건의 포스팅입니다.
건물면적 [ 493.73㎡ (149.35평) ]
대지권 [ 130.26㎡ (39.4평) ]
시세를 반영한 감정가 933,000,000에서
2회 유찰되어 감정가 대비 64%
최저가 597,120,000부터
입찰에 참여할 수 있습니다.
입찰보증금은 최저가 20%
119,424,000이며,
안양지원 경매4계에서
2025-06-24(10:00)
진행 예정입니다.
| 소재지 | [지번] 경기도 안양시 만안구 안양동 674-62 더존아카데미 제6층 제601호 [도로명 주소] 경기도 안양시 만안구 장내로139번길 52 더존아카데미 제6층 제601호 |
||||
|---|---|---|---|---|---|
| 용도 | 근린상가 | 채권자 | 중** | 감정가 | 933,000,000 |
| 건물면적 | 493.73㎡ (149.35평) | 채무자 | ㈜** | 최저가 | (64%) 597,120,000 |
| 대지권 | 130.26㎡ (39.4평) | 소유자 | ㈜** | 보증금 | (20%) 119,424,000 |
| 매각대상 | 재매각 | 경매종류 | 임의경매 | 사건접수일 | 2024-07-08 |
| 최초경매일 | 2025-06-24 | 배당종기일 | 2024-09-19 | 경매개시일 | 2024-07-09 |
| 주의사항 | ☞ 여기 눌러 무료상담 받아보기 | ||||
기일내역
| 회차 | 매각기일 | 최저매각금액 | 결과 |
|---|---|---|---|
| 신건 | 2025-02-11 | 933,000,000 | 유찰 |
| 2차 | 2025-03-18 | 746,400,000 | 매각 |
| 2차 | 2025-05-27 | 746,400,000 | 유찰 |
| 3차 | 2025-06-24 | 597,120,000 |
임차인현황
| 임차인 | 점유현황 | 전입/확정/배당 |
|---|---|---|
| i** | 상가임차인 601호중470.59㎡(콜라텍) |
전입 : / 확정 : X / 배당 : X |
| i** | 상가임차인 601-1호23.14㎡(카페) |
전입 : / 확정 : X / 배당 : X |







































