사건번호 2024 타경 60519
본건은 서울특별시 서대문구 남가좌동 102-3 외 3필지
소재하는 근린시설경매 물건의 포스팅입니다.
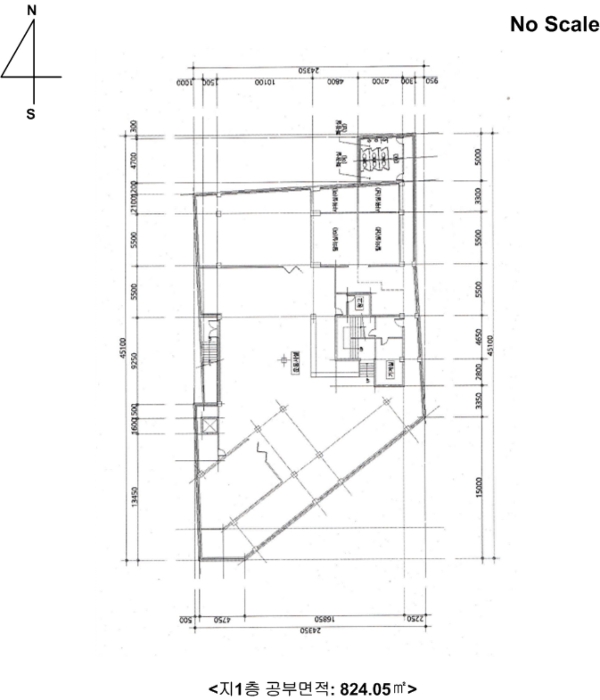
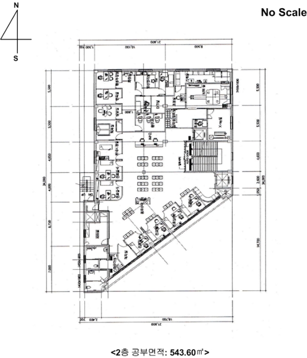
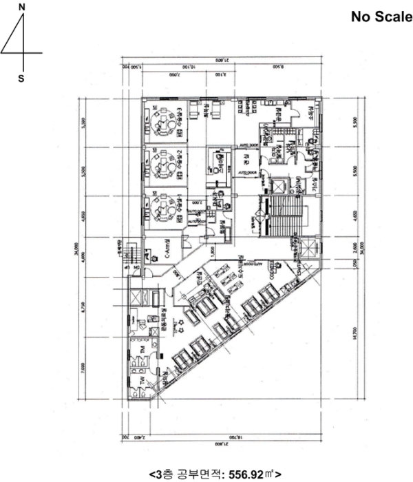
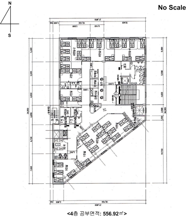
건물면적 [ 5845.64㎡ (1768.3평) ]
토지면적 [ 1747㎡ (528.47평) ]
시세를 반영한 감정가 29,902,909,000에서
신건으로 감정가 대비 100%
최저가 29,902,909,000부터
입찰에 참여할 수 있습니다.
입찰보증금은 최저가 10%
2,990,290,900이며,
서울서부지방법원 경매7계에서
2025-06-24(10:00)
진행 예정입니다.
| 소재지 | [지번] 서울특별시 서대문구 남가좌동 102-3 외 3필지 [도로명 주소] 서울특별시 서대문구 수색로 18 |
||||
|---|---|---|---|---|---|
| 용도 | 근린시설 | 채권자 | 김**외3명 | 감정가 | 29,902,909,000 |
| 건물면적 | 5845.64㎡ (1768.3평) | 채무자 | 김** | 최저가 | (100%) 29,902,909,000 |
| 토지면적 | 1747㎡ (528.47평) | 소유자 | 김**외5명 | 보증금 | (10%) 2,990,290,900 |
| 매각대상 | 대항력있는임차인, 공유물분할경매 | 경매종류 | 공유물분할을위한경매 | 사건접수일 | 2024-08-30 |
| 최초경매일 | 2025-06-24 | 배당종기일 | 2024-11-18 | 경매개시일 | 2024-09-05 |
| 주의사항 | ☞ 여기 눌러 무료상담 받아보기 | ||||
기일내역
| 회차 | 매각기일 | 최저매각금액 | 결과 |
|---|---|---|---|
| 신건 | 2025-06-24 | 29,902,909,000 |
임차인현황
| 임차인 | 점유현황 | 전입/확정/배당 |
|---|---|---|
| i** | 상가임차인 점포 1층 일부2011.2.1.~2013.1.30. |
전입 : / 확정 : X / 배당 : X |
| i** | 상가임차인 점포 1층 일부2011.2.1.~2013.1.30. |
전입 : / 확정 : X / 배당 : X |
| i** | 상가임차인 점포 2,3,4,5층2015.5.26.~2029.11.25. |
전입 : / 확정 : X / 배당 : X |
| i** | 상가임차인 점포 2,3,4,5층2015.5.26.~2029.11.25. |
전입 : / 확정 : X / 배당 : X |
| i** | 상가임차인 점포 지층2016.10.5.~ |
전입 : / 확정 : 2024-11-13 / 배당 : X |
| i** | 상가임차인 점포 지층2016.10.5.~ |
전입 : / 확정 : 2024-11-13 / 배당 : X |
| i** | 상가임차인 점포2023.8.31.~2024.8.31. |
전입 : / 확정 : X / 배당 : X |
| i** | 상가임차인 점포2023.8.31.~2024.8.31. |
전입 : / 확정 : X / 배당 : X |







































