안산아파트경매 안산시 단원구 고잔동 720 호수공원아파트 제123동 제3층 제302호 №2024 타경 70650

차별화된 5단계 맞춤형 경매 서비스 - 더블옥션

법원경매전문 (주)더블옥션은 보증보험 가입 및 법원 매수대리 등록업체로 안전하고 책임있는 컨설팅을 진행합니다. 등록번호(02-17-3)

사건번호 2024 타경 70650

본건은 경기도 안산시 단원구 고잔동 720 호수공원아파트 제123동 제3층 제302호
소재하는 아파트경매 물건의 포스팅입니다.

건물면적 [ 134.88㎡ (40.8평) ]
대지권 [ 85.27㎡ (25.79평) ]

시세를 반영한 감정가 834,000,000에서
1회 유찰되어 감정가 대비 70%
최저가 583,800,000부터
입찰에 참여할 수 있습니다.

입찰보증금은 최저가 10%
58,380,000이며,
안산지원 경매2계에서
2025-06-26(10:30)
진행 예정입니다.

소재지 [지번] 경기도 안산시 단원구 고잔동 720 호수공원아파트 제123동 제3층 제302호
[도로명 주소] 경기도 안산시 단원구 광덕서로 19 호수공원아파트 제123동 제3층 제302호
용도 아파트 채권자 임** 감정가 834,000,000
건물면적 134.88㎡ (40.8평) 채무자 유** 최저가 (70%) 583,800,000
대지권 85.27㎡ (25.79평) 소유자 유** 보증금 (10%) 58,380,000
매각대상 경매종류 임의경매 사건접수일 2024-11-18
최초경매일 2025-06-26 배당종기일 2025-02-05 경매개시일 2024-11-20
주의사항 ☞ 여기 눌러 무료상담 받아보기

기일내역

회차 매각기일 최저매각금액 결과
신건 2025-05-22 834,000,000 유찰
2차 2025-06-26 583,800,000
정확한 권리 분석, 꼼꼼한 현장 조사, 예상 낙찰가 제안, 대출 연계, 점유자 이전 - 더블옥션

임차인현황

임차인 점유현황 전입/확정/배당
조사된 임차인 내역 없음
더블옥션은 법원 등록 및 보증 보험 가입 업체로 안전하고 성공적인 당신의 비즈니스를 지원합니다. - 더블옥션

건물 전경
공동출입문
세대 현관문
본 건물 전경
본 건물 전경
공동 현관
단지 주위 전경
대문 현관
주위 전경
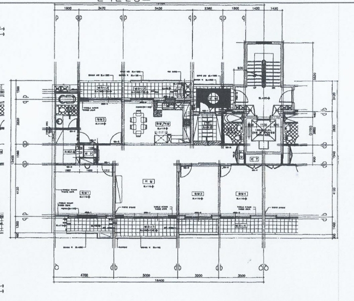
내 부 구 조 도
건물개황도(호별배치도)
건 물 개 황 도
위 치 도
위 치 도
광 역 위 치 도
부동산 경매 전문기업 - 더블옥션

Related Posts