사건번호 2024 타경 85047
본건은 경기도 수원시 권선구 금곡동 1081 호매실역 서희 스타힐스 제508동 제15층 제1502호
소재하는 아파트경매 물건의 포스팅입니다.
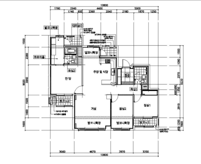
건물면적 [ 84.85㎡ (25.67평) ]
대지권 [ 62.3㎡ (18.85평) ]
시세를 반영한 감정가 562,000,000에서
1회 유찰되어 감정가 대비 70%
최저가 393,400,000부터
입찰에 참여할 수 있습니다.
입찰보증금은 최저가 10%
39,340,000이며,
수원지방법원 경매11계에서
2025-06-23(10:00)
진행 예정입니다.
| 소재지 | [지번] 경기도 수원시 권선구 금곡동 1081 호매실역 서희 스타힐스 제508동 제15층 제1502호 [도로명 주소] 경기도 수원시 권선구 금곡로 46 호매실역 서희 스타힐스 제508동 제15층 제1502호 |
||||
|---|---|---|---|---|---|
| 용도 | 아파트 | 채권자 | 한** | 감정가 | 562,000,000 |
| 건물면적 | 84.85㎡ (25.67평) | 채무자 | 장** | 최저가 | (70%) 393,400,000 |
| 대지권 | 62.3㎡ (18.85평) | 소유자 | 장** | 보증금 | (10%) 39,340,000 |
| 매각대상 | 경매종류 | 임의경매 | 사건접수일 | 2024-08-20 | |
| 최초경매일 | 2025-06-23 | 배당종기일 | 2024-11-07 | 경매개시일 | 2024-08-22 |
| 주의사항 | ☞ 여기 눌러 무료상담 받아보기 | ||||
기일내역
| 회차 | 매각기일 | 최저매각금액 | 결과 |
|---|---|---|---|
| 신건 | 2025-05-20 | 562,000,000 | 유찰 |
| 2차 | 2025-06-23 | 393,400,000 |
임차인현황
| 임차인 | 점유현황 | 전입/확정/배당 |
|---|---|---|
| 조사된 임차인 내역 없음 | ||




![[ 단 지 전 경 ]](https://filelab.co.kr/auctionimg/2025/20250503/B000250202401300850478.jpg)
![[ 공 동 현 관 ]](https://filelab.co.kr/auctionimg/2025/20250503/B000250202401300850479.jpg)
![[ 본 건 전 경 ]](https://filelab.co.kr/auctionimg/2025/20250503/B0002502024013008504710.jpg)
![[ 현 관 전 경 ]](https://filelab.co.kr/auctionimg/2025/20250503/B0002502024013008504711.jpg)








