사건번호 2024 타경 117694
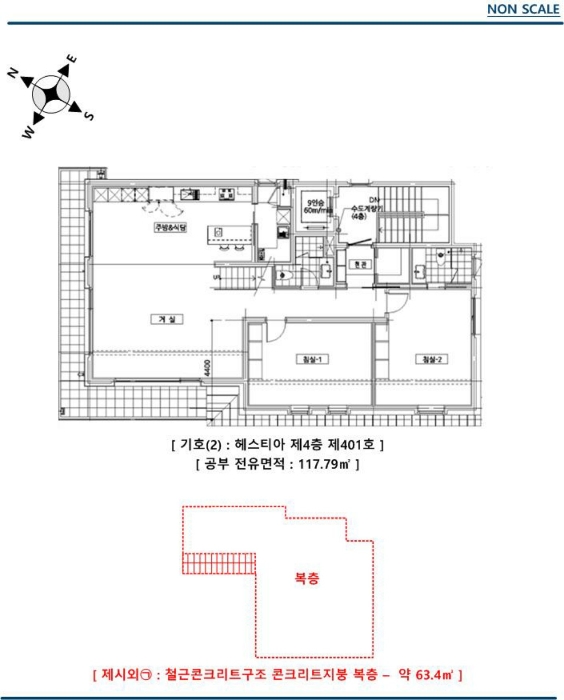
본건은 서울특별시 강남구 청담동 56-16 헤스티아 제4층 제401호
소재하는 다세대(빌라)경매 물건의 포스팅입니다.
건물면적 [ 181.19㎡ (54.81평) ]
대지권 [ 74.84㎡ (22.64평) ]
시세를 반영한 감정가 2,873,630,000에서
1회 유찰되어 감정가 대비 80%
최저가 2,298,904,000부터
입찰에 참여할 수 있습니다.
입찰보증금은 최저가 10%
229,890,400이며,
서울중앙지방법원 경매9계에서
2025-06-17(10:00)
진행 예정입니다.
| 소재지 | [지번] 서울특별시 강남구 청담동 56-16 헤스티아 제4층 제401호 [도로명 주소] 서울특별시 강남구 도산대로100길 19 헤스티아 제4층 제401호 |
||||
|---|---|---|---|---|---|
| 용도 | 다세대(빌라) | 채권자 | ㈜**외1명 | 감정가 | 2,873,630,000 |
| 건물면적 | 181.19㎡ (54.81평) | 채무자 | 이** | 최저가 | (80%) 2,298,904,000 |
| 대지권 | 74.84㎡ (22.64평) | 소유자 | 이** | 보증금 | (10%) 229,890,400 |
| 매각대상 | 선순위전세권 | 경매종류 | 강제경매 | 사건접수일 | 2024-09-04 |
| 최초경매일 | 2025-06-17 | 배당종기일 | 2024-12-02 | 경매개시일 | 2024-09-05 |
| 주의사항 | ☞ 여기 눌러 무료상담 받아보기 | ||||
기일내역
| 회차 | 매각기일 | 최저매각금액 | 결과 |
|---|---|---|---|
| 신건 | 2025-05-13 | 2,873,630,000 | 유찰 |
| 2차 | 2025-06-17 | 2,298,904,000 |
임차인현황
| 임차인 | 점유현황 | 전입/확정/배당 |
|---|---|---|
| i** | 주거임차인 주거용 전부2020.05.15. |
전입 : 2020-05-04 / 확정 : 2024-05-22 / 배당 : 2024-11-27 |

















