사건번호 2024 타경 5953
본건은 충청북도 청주시 상당구 북문로1가 175-3
소재하는 근린시설경매 물건의 포스팅입니다.
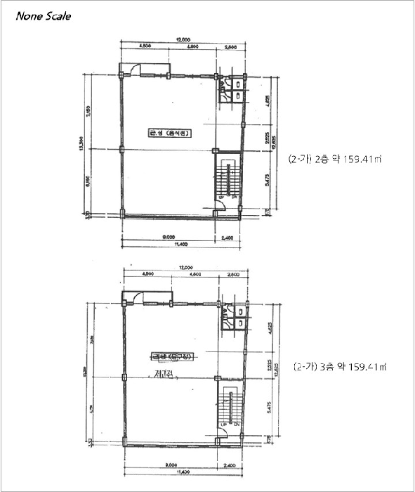
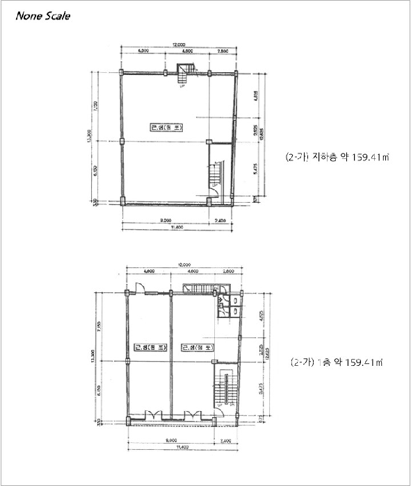
건물면적 [ 943.31㎡ (285.35평) ]
토지면적 [ 188.4㎡ (56.99평) ]
시세를 반영한 감정가 3,131,725,760에서
신건으로 감정가 대비 100%
최저가 3,131,725,760부터
입찰에 참여할 수 있습니다.
입찰보증금은 최저가 10%
313,172,576이며,
청주지방법원 경매3계에서
2025-06-04(10:00)
진행 예정입니다.
| 소재지 | [지번] 충청북도 청주시 상당구 북문로1가 175-3 [도로명 주소] 충북 청주시 상당구 성안로 24-2 |
||||
|---|---|---|---|---|---|
| 용도 | 근린시설 | 채권자 | 김** | 감정가 | 3,131,725,760 |
| 건물면적 | 943.31㎡ (285.35평) | 채무자 | 김** | 최저가 | (100%) 3,131,725,760 |
| 토지면적 | 188.4㎡ (56.99평) | 소유자 | 김** | 보증금 | (10%) 313,172,576 |
| 매각대상 | 공유물분할경매 | 경매종류 | 공유물분할을위한경매 | 사건접수일 | 2024-11-27 |
| 최초경매일 | 2025-06-04 | 배당종기일 | 2025-03-10 | 경매개시일 | 2024-12-04 |
| 주의사항 | ☞ 여기 눌러 무료상담 받아보기 | ||||
기일내역
| 회차 | 매각기일 | 최저매각금액 | 결과 |
|---|---|---|---|
| 신건 | 2025-06-04 | 3,131,725,760 |
임차인현황
| 임차인 | 점유현황 | 전입/확정/배당 |
|---|---|---|
| 조사된 임차인 내역 없음 | ||














