사건번호 2024 타경 64686
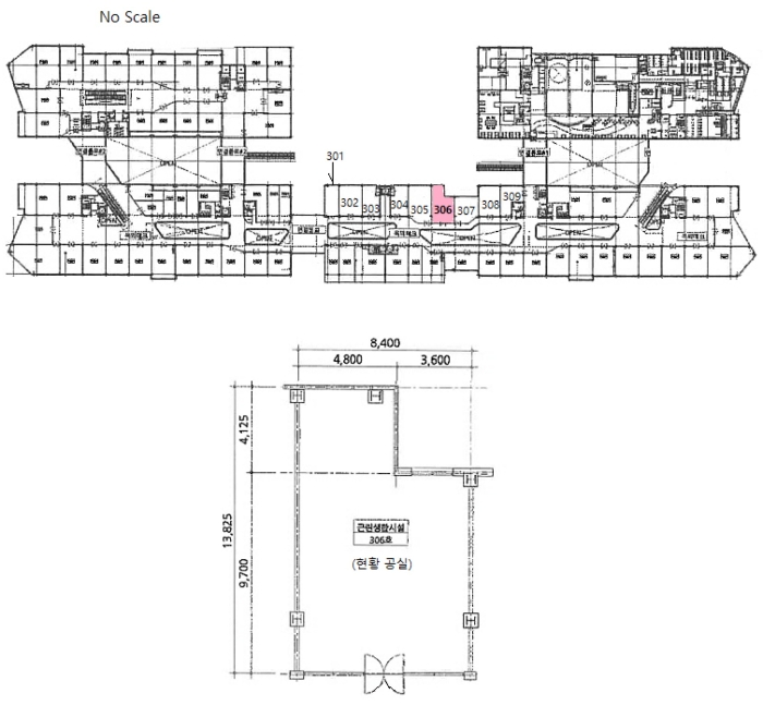
본건은 경기도 시흥시 정왕동 2709 시화엠티브이보니타가 제2동 제3층 제306호
소재하는 근린상가경매 물건의 포스팅입니다.
건물면적 [ 101.41㎡ (30.68평) ]
대지권 [ 72.74㎡ (22평) ]
시세를 반영한 감정가 815,000,000에서
2회 유찰되어 감정가 대비 49%
최저가 399,350,000부터
입찰에 참여할 수 있습니다.
입찰보증금은 최저가 10%
39,935,000이며,
안산지원 경매4계에서
2025-06-05(10:30)
진행 예정입니다.
| 소재지 | [지번] 경기도 시흥시 정왕동 2709 시화엠티브이보니타가 제2동 제3층 제306호 [도로명 주소] 경기도 시흥시 거북섬중앙로 1 시화엠티브이보니타가 제2동 제3층 제306호 |
||||
|---|---|---|---|---|---|
| 용도 | 근린상가 | 채권자 | 한** | 감정가 | 815,000,000 |
| 건물면적 | 101.41㎡ (30.68평) | 채무자 | 한** | 최저가 | (49%) 399,350,000 |
| 대지권 | 72.74㎡ (22평) | 소유자 | 한** | 보증금 | (10%) 39,935,000 |
| 매각대상 | 별도등기 | 경매종류 | 임의경매 | 사건접수일 | 2024-08-18 |
| 최초경매일 | 2025-06-05 | 배당종기일 | 2024-11-18 | 경매개시일 | 2024-08-29 |
| 주의사항 | ☞ 여기 눌러 무료상담 받아보기 | ||||
기일내역
| 회차 | 매각기일 | 최저매각금액 | 결과 |
|---|---|---|---|
| 신건 | 2025-03-13 | 815,000,000 | 유찰 |
| 2차 | 2025-04-24 | 570,500,000 | 유찰 |
| 3차 | 2025-06-05 | 399,350,000 |
임차인현황
| 임차인 | 점유현황 | 전입/확정/배당 |
|---|---|---|
| 조사된 임차인 내역 없음 | ||



















