음성주택경매 음성군 대소면 소석리 262 외 6필지 №2024 타경 32323

차별화된 5단계 맞춤형 경매 서비스 - 더블옥션

법원경매전문 (주)더블옥션은 보증보험 가입 및 법원 매수대리 등록업체로 안전하고 책임있는 컨설팅을 진행합니다. 등록번호(02-17-3)

사건번호 2024 타경 32323

본건은 충청북도 음성군 대소면 소석리 262 외 6필지
소재하는 주택경매 물건의 포스팅입니다.

건물면적 [ 2088.28㎡ (631.7평) ]
토지면적 [ 전체:12159㎡ (3678.08평)
매각지분:12050.12㎡ (3645.14평) ]

시세를 반영한 감정가 4,227,819,760에서
1회 유찰되어 감정가 대비 80%
최저가 3,382,256,000부터
입찰에 참여할 수 있습니다.

입찰보증금은 최저가 10%
338,225,600이며,
충주지원 경매3계에서
2025-05-26(10:00)
진행 예정입니다.

소재지 [지번] 충청북도 음성군 대소면 소석리 262 외 6필지
용도 주택 채권자 도** 감정가 4,227,819,760
건물면적 2088.28㎡ (631.7평) 채무자 이** 최저가 (80%) 3,382,256,000
토지면적 전체:12159㎡ (3678.08평)
매각지분:12050.12㎡ (3645.14평)
소유자 이** 보증금 (10%) 338,225,600
매각대상 건물전부, 토지지분 경매종류 임의경매 사건접수일 2024-04-25
최초경매일 2025-05-26 배당종기일 2024-07-30 경매개시일 2024-04-30
주의사항 ☞ 여기 눌러 무료상담 받아보기

기일내역

회차 매각기일 최저매각금액 결과
신건 2025-04-21 4,227,819,760 유찰
2차 2025-05-26 3,382,256,000
정확한 권리 분석, 꼼꼼한 현장 조사, 예상 낙찰가 제안, 대출 연계, 점유자 이전 - 더블옥션

임차인현황

임차인 점유현황 전입/확정/배당
조사된 임차인 내역 없음
더블옥션은 법원 등록 및 보증 보험 가입 업체로 안전하고 성공적인 당신의 비즈니스를 지원합니다. - 더블옥션

목적물 1~26번
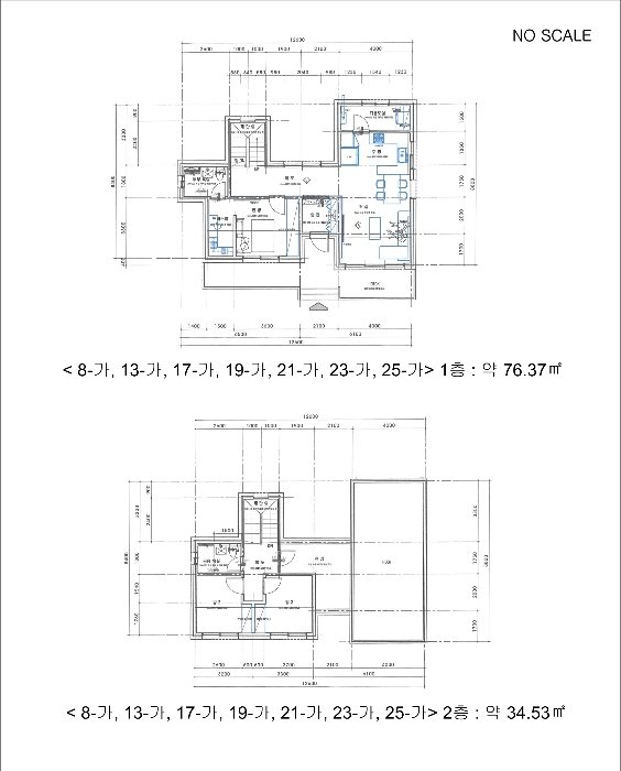
목적물 13번
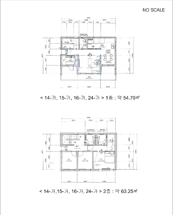
목적물 14번
목적물 15번
목적물 16번
목적물 17번
목적물 1번  7번
목적물 3번
목적물 4번
목적물 6번
목적물 18번
목적물 19번
목적물 20번
목적물 21번
목적물 22번
목적물 23번
목적물 24번
목적물 25번
목적물 26번
목적물 8번
목적물 9번
목적물 10번
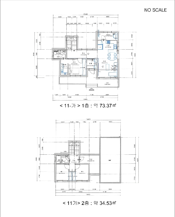
목적물 11번
목적물 12번
개황도
개황도
개황도
개황도
개황도
기호(1) 전경
기호(2) 전경
기호(3) 전경
기호(4) 전경
기호(5) 전경
기호(6) 전경
기호(7) 전경
기호(8) 전경
기호(9) 전경
기호(10) 전경
기호(11) 전경
기호(12) 전경
기호(13) 전경
기호(14) 전경
기호(15) 전경
기호(16) 전경
기호(17) 전경
기호(18) 전경
기호(19) 전경
기호(20) 전경
기호(21) 전경
기호(22) 전경
기호(23) 전경
기호(24) 전경
기호(25) 전경
기호(26) 전경
주위 전경
주위 전경
위치도사진
지적도 사진
부동산 경매 전문기업 - 더블옥션

Related Posts