군포주택경매 군포시 도마교동 464-6 №2024 타경 103374

차별화된 5단계 맞춤형 경매 서비스 - 더블옥션

법원경매전문 (주)더블옥션은 보증보험 가입 및 법원 매수대리 등록업체로 안전하고 책임있는 컨설팅을 진행합니다. 등록번호(02-17-3)

사건번호 2024 타경 103374

본건은 경기도 군포시 도마교동 464-6
소재하는 근린주택경매 물건의 포스팅입니다.

건물면적 [ 453.72㎡ (137.25평) ]
토지면적 [ 254.5㎡ (76.99평) ]

시세를 반영한 감정가 1,810,580,600에서
1회 유찰되어 감정가 대비 80%
최저가 1,448,464,500부터
입찰에 참여할 수 있습니다.

입찰보증금은 최저가 10%
144,846,450이며,
안양지원 경매4계에서
2025-05-27(10:00)
진행 예정입니다.

소재지 [지번] 경기도 군포시 도마교동 464-6
[도로명 주소] 경기도 군포시 송부로95번길 42
용도 근린주택 채권자 이**외1명 감정가 1,810,580,600
건물면적 453.72㎡ (137.25평) 채무자 문** 최저가 (80%) 1,448,464,500
토지면적 254.5㎡ (76.99평) 소유자 문** 보증금 (10%) 144,846,450
매각대상 경매종류 임의경매 사건접수일 2024-04-11
최초경매일 2025-05-27 배당종기일 2024-06-24 경매개시일 2024-04-12
주의사항 ☞ 여기 눌러 무료상담 받아보기

기일내역

회차 매각기일 최저매각금액 결과
신건 2025-04-15 1,810,580,600 유찰
2차 2025-05-27 1,448,464,500
정확한 권리 분석, 꼼꼼한 현장 조사, 예상 낙찰가 제안, 대출 연계, 점유자 이전 - 더블옥션

임차인현황

임차인 점유현황 전입/확정/배당
i** 주거임차인
일부(3층방2칸)301호
전입 : 2023-10-16 / 확정 : 2023-09-20 / 배당 : 2024-05-14
i** 상가임차인
1층상가
전입 : 2023-10-16 / 확정 : X / 배당 : 2024-05-17
i** 주거임차인
2층202호(방3개)
전입 : 2024-01-08 / 확정 : 2024-01-22 / 배당 : 2024-05-22
i** 주거임차인
2층201호(방 2개)
전입 : 2024-01-09 / 확정 : 2024-01-23 / 배당 : 2024-05-17
i** 주거임차인
일부(4층401호)
전입 : 2024-01-11 / 확정 : 2024-01-11 / 배당 : 2024-06-12
더블옥션은 법원 등록 및 보증 보험 가입 업체로 안전하고 성공적인 당신의 비즈니스를 지원합니다. - 더블옥션

목록1부동산
목록1 2부동산
목록1 2부동산
목록1 2부동산
목록2부동산의
공동출입구 및
건물준공표지판
목록2부동산의
목록2부동산의
목록2부동산 2
목록2부동산의
목록2부동산의
목록2부동산의
목록2부동산의
목록2부동산의
목록2부동산의
목록2부동산의
목록2부동산의
목록2부동산의
본건 주위환경
본건 전경 -
본건 전경 -
본건 1층 전경
본건 2층(2개호)
본건 4층(1개호)
본건 주위환경
본건 전경 -
본건 전경 -
본건 1층 내부
본건 3층(2개호)
본건물 공동 출
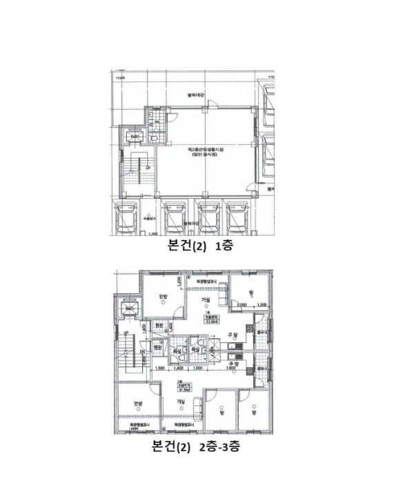
건 물 개 황 도
건 물 개 황 도
위 치 도
광 역 위 치 도
지적 및 건물개
부동산 경매 전문기업 - 더블옥션

Related Posts