담양주택경매 담양군 담양읍 남산리 220-25 남산메종드아트 №2024 타경 7046(2)

차별화된 5단계 맞춤형 경매 서비스 - 더블옥션

법원경매전문 (주)더블옥션은 보증보험 가입 및 법원 매수대리 등록업체로 안전하고 책임있는 컨설팅을 진행합니다. 등록번호(02-17-3)

사건번호 2024 타경 7046(2)

본건은 전라남도 담양군 담양읍 남산리 220-25 남산메종드아트
소재하는 주택경매 물건의 포스팅입니다.

건물면적 [ 157.11㎡ (47.53평) ]
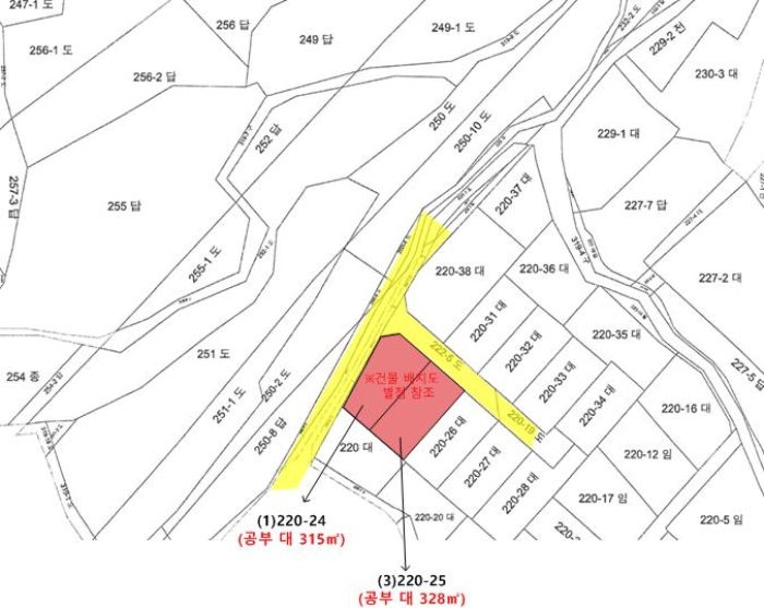
토지면적 [ 328㎡ (99.22평) ]

시세를 반영한 감정가 602,965,000에서
1회 유찰되어 감정가 대비 70%
최저가 422,076,000부터
입찰에 참여할 수 있습니다.

입찰보증금은 최저가 10%
42,207,600이며,
광주지방법원 경매6계에서
2025-05-21(10:00)
진행 예정입니다.

소재지 [지번] 전라남도 담양군 담양읍 남산리 220-25 남산메종드아트
[도로명 주소] 전라남도 담양군 담양읍 남촌길 21-25 남산메종드아트
용도 주택 채권자 동** 감정가 602,965,000
건물면적 157.11㎡ (47.53평) 채무자 서** 최저가 (70%) 422,076,000
토지면적 328㎡ (99.22평) 소유자 서** 보증금 (10%) 42,207,600
매각대상 경매종류 임의경매 사건접수일 2024-08-29
최초경매일 2025-05-21 배당종기일 2024-11-22 경매개시일 2024-08-30
주의사항 ☞ 여기 눌러 무료상담 받아보기

기일내역

회차 매각기일 최저매각금액 결과
신건 2025-04-09 602,965,000 유찰
2차 2025-05-21 422,076,000
정확한 권리 분석, 꼼꼼한 현장 조사, 예상 낙찰가 제안, 대출 연계, 점유자 이전 - 더블옥션

임차인현황

임차인 점유현황 전입/확정/배당
조사된 임차인 내역 없음
더블옥션은 법원 등록 및 보증 보험 가입 업체로 안전하고 성공적인 당신의 비즈니스를 지원합니다. - 더블옥션

남산리 220-25
남산리 220-25
남산리 220-25
남산리 220-25
남산리 220-25
기호 3 및 기
기호 3 및 기
기호 4(나)
기호 4(나)
기호 3 지상
기호 3 지상
기호 3 지상
기호 3 지상
위 치 도
지 적 도
지적 및 건물개
지적 및 건물개
지적 및 건물개
부동산 경매 전문기업 - 더블옥션

Related Posts