수원상가경매 수원시 팔달구 인계동 1022-3 센트럴하임 제1층 제101호 №2024 타경 70434(1)

차별화된 5단계 맞춤형 경매 서비스 - 더블옥션

법원경매전문 (주)더블옥션은 보증보험 가입 및 법원 매수대리 등록업체로 안전하고 책임있는 컨설팅을 진행합니다. 등록번호(02-17-3)

사건번호 2024 타경 70434(1)

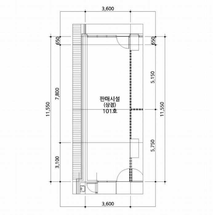
본건은 경기도 수원시 팔달구 인계동 1022-3 센트럴하임 제1층 제101호
소재하는 근린상가경매 물건의 포스팅입니다.

건물면적 [ 41.58㎡ (12.58평) ]
대지권 [ 16.04㎡ (4.85평) ]

시세를 반영한 감정가 755,000,000에서
2회 유찰되어 감정가 대비 49%
최저가 369,950,000부터
입찰에 참여할 수 있습니다.

입찰보증금은 최저가 10%
36,995,000이며,
수원지방법원 경매16계에서
2025-05-21(10:00)
진행 예정입니다.

소재지 [지번] 경기도 수원시 팔달구 인계동 1022-3 센트럴하임 제1층 제101호
[도로명 주소] 경기도 수원시 팔달구 인계로108번길 18 센트럴하임 제1층 제101호
용도 근린상가 채권자 동** 감정가 755,000,000
건물면적 41.58㎡ (12.58평) 채무자 ㈜** 최저가 (49%) 369,950,000
대지권 16.04㎡ (4.85평) 소유자 ㈜** 보증금 (10%) 36,995,000
매각대상 임금채권 경매종류 임의경매 사건접수일 2024-05-20
최초경매일 2025-05-21 배당종기일 2024-08-07 경매개시일 2024-05-21
주의사항 ☞ 여기 눌러 무료상담 받아보기

기일내역

회차 매각기일 최저매각금액 결과
신건 2025-03-14 755,000,000 유찰
2차 2025-04-15 528,500,000 유찰
3차 2025-05-21 369,950,000
정확한 권리 분석, 꼼꼼한 현장 조사, 예상 낙찰가 제안, 대출 연계, 점유자 이전 - 더블옥션

임차인현황

임차인 점유현황 전입/확정/배당
i** 상가임차인
101호전부
전입 : / 확정 : 2023-05-23 / 배당 : 2024-06-03
더블옥션은 법원 등록 및 보증 보험 가입 업체로 안전하고 성공적인 당신의 비즈니스를 지원합니다. - 더블옥션












부동산 경매 전문기업 - 더블옥션

Related Posts