사건번호 2024 타경 63873
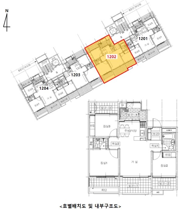
본건은 경기도 성남시 중원구 하대원동 539 성남자이 제114동 제12층 제1202호
소재하는 아파트경매 물건의 포스팅입니다.
건물면적 [ 59.99㎡ (18.15평) ]
대지권 [ 32.37㎡ (9.79평) ]
시세를 반영한 감정가 612,000,000에서
1회 유찰되어 감정가 대비 70%
최저가 428,400,000부터
입찰에 참여할 수 있습니다.
입찰보증금은 최저가 10%
42,840,000이며,
성남지원 경매8계에서
2025-05-19(10:00)
진행 예정입니다.
| 소재지 | [지번] 경기도 성남시 중원구 하대원동 539 성남자이 제114동 제12층 제1202호 [도로명 주소] 경기도 성남시 중원구 둔촌대로 363 성남자이 제114동 제12층 제1202호 |
||||
|---|---|---|---|---|---|
| 용도 | 아파트 | 채권자 | 성** | 감정가 | 612,000,000 |
| 건물면적 | 59.99㎡ (18.15평) | 채무자 | 김** | 최저가 | (70%) 428,400,000 |
| 대지권 | 32.37㎡ (9.79평) | 소유자 | 김** | 보증금 | (10%) 42,840,000 |
| 매각대상 | 경매종류 | 강제경매 | 사건접수일 | 2024-08-13 | |
| 최초경매일 | 2025-05-19 | 배당종기일 | 2024-10-21 | 경매개시일 | 2024-08-19 |
| 주의사항 | ☞ 여기 눌러 무료상담 받아보기 | ||||
기일내역
| 회차 | 매각기일 | 최저매각금액 | 결과 |
|---|---|---|---|
| 신건 | 2025-04-14 | 612,000,000 | 유찰 |
| 2차 | 2025-05-19 | 428,400,000 |
임차인현황
| 임차인 | 점유현황 | 전입/확정/배당 |
|---|---|---|
| 조사된 임차인 내역 없음 | ||















