사건번호 2024 타경 103954
본건은 서울특별시 관악구 봉천동 662-18 라온18
소재하는 근린주택경매 물건의 포스팅입니다.
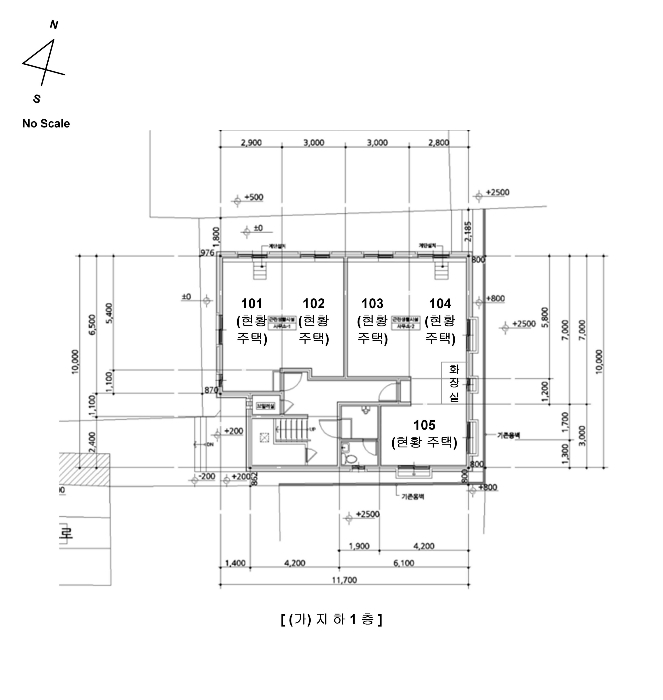
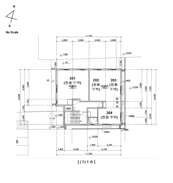
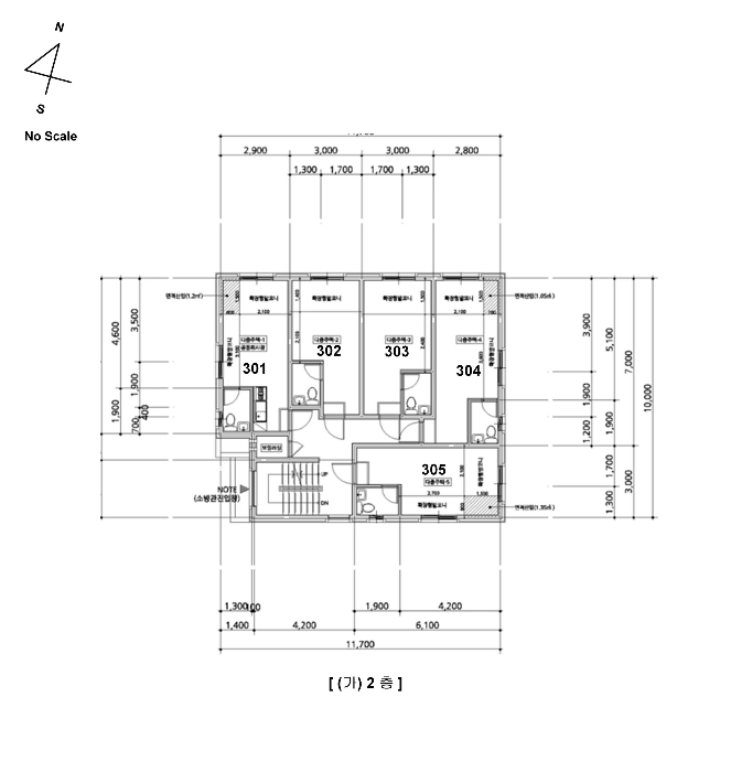
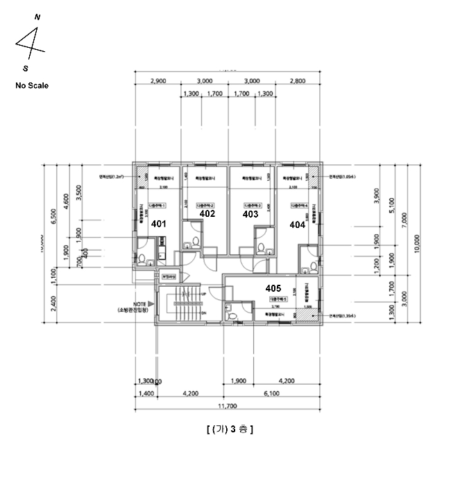
건물면적 [ 482.36㎡ (145.91평) ]
토지면적 [ 192㎡ (58.08평) ]
시세를 반영한 감정가 2,460,743,560에서
1회 유찰되어 감정가 대비 80%
최저가 1,968,594,000부터
입찰에 참여할 수 있습니다.
입찰보증금은 최저가 10%
196,859,400이며,
서울중앙지방법원 경매9계에서
2025-05-13(10:00)
진행 예정입니다.
| 소재지 | [지번] 서울특별시 관악구 봉천동 662-18 라온18 [도로명 주소] 서울특별시 관악구 봉천로17가길 31(봉천동) 라온18 |
||||
|---|---|---|---|---|---|
| 용도 | 근린주택 | 채권자 | 든** | 감정가 | 2,460,743,560 |
| 건물면적 | 482.36㎡ (145.91평) | 채무자 | 엄** | 최저가 | (80%) 1,968,594,000 |
| 토지면적 | 192㎡ (58.08평) | 소유자 | 엄** | 보증금 | (10%) 196,859,400 |
| 매각대상 | 경매종류 | 임의경매 | 사건접수일 | 2024-02-23 | |
| 최초경매일 | 2025-05-13 | 배당종기일 | 2024-05-13 | 경매개시일 | 2024-02-27 |
| 주의사항 | ☞ 여기 눌러 무료상담 받아보기 | ||||
기일내역
| 회차 | 매각기일 | 최저매각금액 | 결과 |
|---|---|---|---|
| 신건 | 2025-02-18 | 2,460,743,560 | 유찰 |
| 2025-03-25 | 1,968,595,000 | 변경 | |
| 2차 | 2025-05-13 | 1,968,594,000 |
임차인현황
| 임차인 | 점유현황 | 전입/확정/배당 |
|---|---|---|
| i** | 주거임차인 2층 중일부23㎡(문패상305호) |
전입 : 2020-08-10 / 확정 : 2020-07-17 / 배당 : 2024-03-20 |
| i** | 주거임차인 2층 중일부17.304㎡(301호) |
전입 : 2020-08-10 / 확정 : 2020-07-20 / 배당 : 2023-04-14 |
| i** | 주거임차인 3층 중일부23㎡(문패상401호) |
전입 : 2020-08-28 / 확정 : 2020-07-15 / 배당 : 2024-03-15 |
| i** | 주거임차인 2층 중일부23㎡(문패상304호) |
전입 : 2020-09-11 / 확정 : 2020-07-20 / 배당 : 2024-03-14 |
| i** | 주거임차인 | 전입 : 2020-10-30 / 확정 : X / 배당 : X |
| i** | 주거임차인 | 전입 : 2020-11-24 / 확정 : X / 배당 : X |
| i** | 주거임차인 3층 중일부17.304㎡(문패상402호) |
전입 : 2020-12-18 / 확정 : 2020-11-18 / 배당 : 2024-03-15 |
| i** | 주거임차인 | 전입 : 2021-04-09 / 확정 : X / 배당 : X |
| i** | 주거임차인 3층 중일부21.63㎡(문패상404호) |
전입 : 2021-09-23 / 확정 : 2021-08-30 / 배당 : 2024-03-15 |
| i** | 주거임차인 | 전입 : 2021-10-14 / 확정 : X / 배당 : X |
| i** | 주거임차인 4층 중일부19㎡(문패상501호) |
전입 : 2022-08-02 / 확정 : 2022-07-04 / 배당 : 2024-05-13 |
| i** | 주거임차인 2층 중일부13.22㎡(문패상302호) |
전입 : 2022-08-24 / 확정 : 2022-08-01 / 배당 : 2024-03-14 |
| i** | 주거임차인 4층 중일부19㎡(문패상502호) |
전입 : 2022-08-25 / 확정 : 2022-08-02 / 배당 : 2024-03-15 |
| i** | 주거임차인 2층 중일부13.22㎡(문패상303호) |
전입 : 2022-08-26 / 확정 : 2022-08-04 / 배당 : 2024-03-15 |
| i** | 주거임차인 4층 중일부18.15㎡(문패상503호) |
전입 : 2022-08-26 / 확정 : 2022-08-08 / 배당 : 2024-03-15 |
| i** | 주거임차인 3층 중일부18.15㎡(문패상403호) |
전입 : 2022-08-29 / 확정 : 2022-08-04 / 배당 : 2024-03-07 |
| i** | 주거임차인 | 전입 : 2023-06-30 / 확정 : X / 배당 : X |
| i** | 주거임차인 | 전입 : 2023-10-23 / 확정 : X / 배당 : X |
| i** | 주거임차인 | 전입 : 2023-12-12 / 확정 : X / 배당 : X |

















































