강남다가구(원룸등)경매 강남구 율현동 세곡2보금자리주택지구8블럭11로트 №2024 타경 123408

차별화된 5단계 맞춤형 경매 서비스 - 더블옥션

법원경매전문 (주)더블옥션은 보증보험 가입 및 법원 매수대리 등록업체로 안전하고 책임있는 컨설팅을 진행합니다. 등록번호(02-17-3)

사건번호 2024 타경 123408

본건은 서울특별시 강남구 율현동 세곡2보금자리주택지구8블럭11로트
소재하는 다가구(원룸등)경매 물건의 포스팅입니다.

건물면적 [ 477.13㎡ (144.33평) ]
토지면적 [ 275.3㎡ (83.28평) ]

시세를 반영한 감정가 3,904,779,120에서
1회 유찰되어 감정가 대비 80%
최저가 3,123,823,000부터
입찰에 참여할 수 있습니다.

입찰보증금은 최저가 10%
312,382,300이며,
서울중앙지방법원 경매10계에서
2025-05-07(10:00)
진행 예정입니다.

소재지 [지번] 서울특별시 강남구 율현동 세곡2보금자리주택지구8블럭11로트
[도로명 주소] 서울특별시 강남구 밤고개로27길 7-5
용도 다가구(원룸등) 채권자 송** 감정가 3,904,779,120
건물면적 477.13㎡ (144.33평) 채무자 최** 최저가 (80%) 3,123,823,000
토지면적 275.3㎡ (83.28평) 소유자 최** 보증금 (10%) 312,382,300
매각대상 경매종류 임의경매 사건접수일 2024-11-20
최초경매일 2025-05-07 배당종기일 2025-02-03 경매개시일 2024-11-21
주의사항 ☞ 여기 눌러 무료상담 받아보기

기일내역

회차 매각기일 최저매각금액 결과
신건 2025-04-02 3,904,779,120 유찰
2차 2025-05-07 3,123,823,000
정확한 권리 분석, 꼼꼼한 현장 조사, 예상 낙찰가 제안, 대출 연계, 점유자 이전 - 더블옥션

임차인현황

임차인 점유현황 전입/확정/배당
i** 주거임차인
103호
전입 : 2018-03-02 / 확정 : 2018-02-14 / 배당 : 2024-12-30
i** 주거임차인
104호
전입 : 2020-03-26 / 확정 : 2023-06-07 / 배당 : 2024-12-30
i** 주거임차인
101호
전입 : 2020-06-25 / 확정 : 2020-06-25 / 배당 : 2024-12-30
i** 주거임차인
202호
전입 : 2022-02-25 / 확정 : 2022-02-25 / 배당 : 2024-12-11
i** 주거임차인
201호
전입 : 2023-06-09 / 확정 : 2024-12-31 / 배당 : 2025-01-31
i** 주거임차인 전입 : 2023-10-19 / 확정 : X / 배당 : X
더블옥션은 법원 등록 및 보증 보험 가입 업체로 안전하고 성공적인 당신의 비즈니스를 지원합니다. - 더블옥션

세대현관문
세대현관문
세대현관문
세대현관문
세대현관문
전경
세대현관문
세대현관문
세대현관문
세대현관문
세대현관문
세대현관문
본건 전경
1층 전경
1층 외부표기
1층 외부표기
2층 외부표기
2층 외부표기
주변환경
본건 전경
2층 전경
1층 외부표기
1층 외부표기
2층 외부표기
2층 외부표기
주변환경
본건 전경
지1층 전경
1층 외부표기
1층 외부표기
2층 외부표기
2층 외부표기
본건건물 공동출
외부표기 103
지1층 외부표기
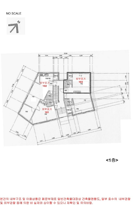
건 물 개 황 도
건 물 개 황 도
건 물 개 황 도
건 물 개 황 도
위 치 도
광 역 위 치 도
지 적 도
부동산 경매 전문기업 - 더블옥션

Related Posts