사건번호 2024 타경 93338
본건은 경기도 용인시 처인구 이동읍 천리 587-3
소재하는 다가구(원룸등)경매 물건의 포스팅입니다.
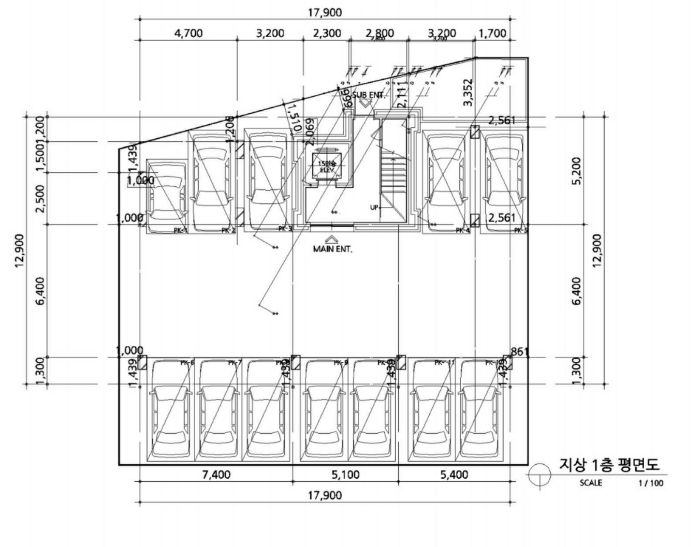
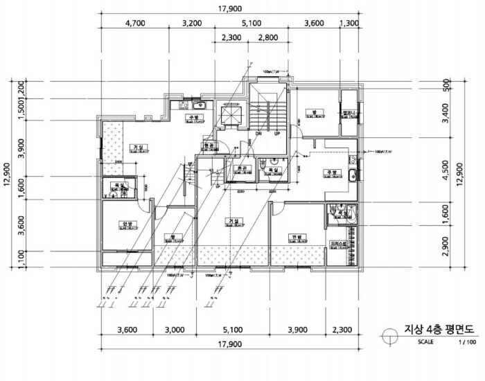
건물면적 [ 544.62㎡ (164.75평) ]
토지면적 [ 352㎡ (106.48평) ]
시세를 반영한 감정가 1,399,728,120에서
1회 유찰되어 감정가 대비 70%
최저가 979,810,000부터
입찰에 참여할 수 있습니다.
입찰보증금은 최저가 10%
97,981,000이며,
수원지방법원 경매13계에서
2025-05-14(10:00)
진행 예정입니다.
| 소재지 | [지번] 경기도 용인시 처인구 이동읍 천리 587-3 [도로명 주소] 경기도 용인시 처인구 이동읍 백옥대로753번길 13-16 |
||||
|---|---|---|---|---|---|
| 용도 | 다가구(원룸등) | 채권자 | 위** | 감정가 | 1,399,728,120 |
| 건물면적 | 544.62㎡ (164.75평) | 채무자 | 이** | 최저가 | (70%) 979,810,000 |
| 토지면적 | 352㎡ (106.48평) | 소유자 | 이** | 보증금 | (10%) 97,981,000 |
| 매각대상 | 경매종류 | 강제경매 | 사건접수일 | 2024-10-15 | |
| 최초경매일 | 2025-05-14 | 배당종기일 | 2025-01-02 | 경매개시일 | 2024-10-17 |
| 주의사항 | ☞ 여기 눌러 무료상담 받아보기 | ||||
기일내역
| 회차 | 매각기일 | 최저매각금액 | 결과 |
|---|---|---|---|
| 신건 | 2025-02-04 | 1,399,728,120 | 유찰 |
| 2025-03-07 | 979,810,000 | 변경 | |
| 2025-04-08 | 979,810,000 | 변경 | |
| 2차 | 2025-05-14 | 979,810,000 |
임차인현황
| 임차인 | 점유현황 | 전입/확정/배당 |
|---|---|---|
| i** | 주거임차인 106동301호 |
전입 : 2020-02-27 / 확정 : 2020-02-27 / 배당 : 2024-12-31 |
| i** | 주거임차인 106동301호 |
전입 : 2020-02-27 / 확정 : 2020-02-27 / 배당 : 2024-12-31 |
| i** | 주거임차인 106동302호 |
전입 : 2020-03-06 / 확정 : 2020-03-06 / 배당 : 2024-11-08 |
| i** | 주거임차인 106동203호전체 |
전입 : 2020-04-03 / 확정 : 2020-03-17 / 배당 : 2024-12-11 |
| i** | 주거임차인 106동305호 |
전입 : 2020-04-09 / 확정 : 2020-04-09 / 배당 : 2024-11-12 |
| i** | 주거임차인 106동402호 |
전입 : 2020-04-10 / 확정 : 2020-03-11 / 배당 : 2024-11-26 |
| i** | 주거임차인 | 전입 : 2020-08-07 / 확정 : X / 배당 : X |
| i** | 주거임차인 | 전입 : 2022-03-07 / 확정 : X / 배당 : X |
| i** | 주거임차인 | 전입 : 2023-08-23 / 확정 : X / 배당 : X |
| i** | 주거임차인 | 전입 : 2024-02-23 / 확정 : X / 배당 : X |
| i** | 주거임차인 106동303호 |
전입 : 2024-11-27 / 확정 : 2024-12-19 / 배당 : 2024-12-31 |
| i** | 주거임차인 4층서쪽(401호)61.06㎡ |
전입 : X / 확정 : X / 배당 : 2024-11-26 |






























