사건번호 2024 타경 442(1)
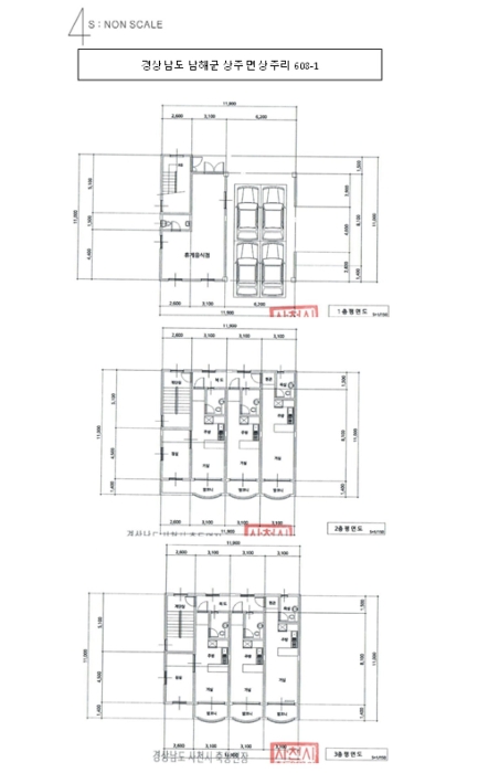
본건은 경상남도 남해군 상주면 상주리 608-1
소재하는 숙박시설경매 물건의 포스팅입니다.
건물면적 [ 287.33㎡ (86.92평) ]
토지면적 [ 329㎡ (99.52평) ]
시세를 반영한 감정가 513,485,300에서
2회 유찰되어 감정가 대비 64%
최저가 328,630,000부터
입찰에 참여할 수 있습니다.
입찰보증금은 최저가 10%
32,863,000이며,
진주지원 경매4계에서
2025-05-12(10:00)
진행 예정입니다.
| 소재지 | [지번] 경상남도 남해군 상주면 상주리 608-1 [도로명 주소] 경상남도 남해군 상주면 남해대로675번길 14-4 |
||||
|---|---|---|---|---|---|
| 용도 | 숙박시설 | 채권자 | 남** | 감정가 | 513,485,300 |
| 건물면적 | 287.33㎡ (86.92평) | 채무자 | 조** | 최저가 | (64%) 328,630,000 |
| 토지면적 | 329㎡ (99.52평) | 소유자 | 박** | 보증금 | (10%) 32,863,000 |
| 매각대상 | 경매종류 | 임의경매 | 사건접수일 | 2024-01-22 | |
| 최초경매일 | 2025-05-12 | 배당종기일 | 2024-04-17 | 경매개시일 | 2024-01-23 |
| 주의사항 | ☞ 여기 눌러 무료상담 받아보기 | ||||
기일내역
| 회차 | 매각기일 | 최저매각금액 | 결과 |
|---|---|---|---|
| 신건 | 2025-02-17 | 513,485,300 | 유찰 |
| 2차 | 2025-03-31 | 410,788,000 | 유찰 |
| 3차 | 2025-05-12 | 328,630,000 |
임차인현황
| 임차인 | 점유현황 | 전입/확정/배당 |
|---|---|---|
| 조사된 임차인 내역 없음 | ||

























