사건번호 2023 타경 9292
본건은 제주특별자치도 제주시 연동 291-98
소재하는 근린주택경매 물건의 포스팅입니다.
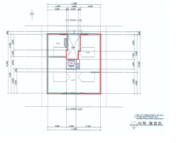
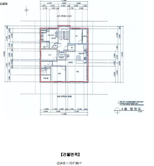
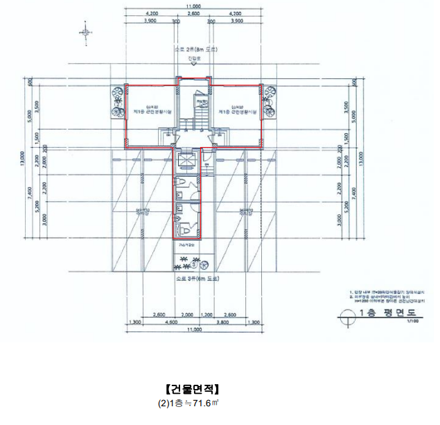
건물면적 [ 485.48㎡ (146.86평) ]
토지면적 [ 230.2㎡ (69.64평) ]
시세를 반영한 감정가 1,602,688,160에서
1회 유찰되어 감정가 대비 70%
최저가 1,121,882,000부터
입찰에 참여할 수 있습니다.
입찰보증금은 최저가 10%
112,188,200이며,
제주지방법원 경매4계에서
2026-03-31(10:00)
진행 예정입니다.
| 소재지 | [지번] 제주특별자치도 제주시 연동 291-98 [도로명 주소] 제주특별자치도 제주시 성두길 6 |
||||
|---|---|---|---|---|---|
| 용도 | 근린주택 | 채권자 | 현**외1명 | 감정가 | 1,602,688,160 |
| 건물면적 | 485.48㎡ (146.86평) | 채무자 | 차** | 최저가 | (70%) 1,121,882,000 |
| 토지면적 | 230.2㎡ (69.64평) | 소유자 | 차** | 보증금 | (10%) 112,188,200 |
| 매각대상 | 경매종류 | 임의경매 | 사건접수일 | 2023-09-15 | |
| 최초경매일 | 2026-03-31 | 배당종기일 | 2023-03-29 | 경매개시일 | 2023-09-25 |
| 주의사항 | ☞ 여기 눌러 무료상담 받아보기 | ||||
기일내역
| 회차 | 매각기일 | 최저매각금액 | 결과 |
|---|---|---|---|
| 2025-07-08 | 1,602,688,160 | 변경 | |
| 신건 | 2026-02-24 | 1,602,688,160 | 유찰 |
| 2차 | 2026-03-31 | 1,121,882,000 |
임차인현황
| 임차인 | 점유현황 | 전입/확정/배당 |
|---|---|---|
| i** | 주거임차인 주거용 302호 |
전입 : 2019-04-18 / 확정 : 2019-04-19 / 배당 : 2023-03-21 |
| i** | 상가임차인 점포 102호2019.04.09.~ |
확정 : X / 배당 : 2023-02-06 |
| i** | 상가임차인 점포 1층2019.4.10.~ |
확정 : X / 배당 : 2023-02-06 |
| i** | 주거임차인 주거용 303호2020.5.10.~2024.5.9. |
전입 : 2021-01-04 / 확정 : X / 배당 : X |
| i** | 주거임차인 주거용 501호인터스타2021.05.11.부터 |
전입 : 2021-05-11 / 확정 : X / 배당 : 2023-02-10 |
| i** | 주거임차인 주거용 501호2021.5.11.~2023.5.10. |
전입 : 2021-05-11 / 확정 : X / 배당 : X |
| i** | 주거임차인 주거용 202호2019.03.15.~2023.03.15. |
전입 : 2021-10-28 / 확정 : X / 배당 : 2023-02-06 |
| i** | 주거임차인 주거용 301호2021.11.3.~2023.11.4. |
전입 : 2021-11-03 / 확정 : 2021-11-04 / 배당 : 2023-03-22 |
| i** | 주거임차인 주거용 502호2022.6.16.~2024.6.15. |
전입 : 2022-06-16 / 확정 : X / 배당 : X |
| i** | 주거임차인 주거용 201호미상 |
전입 : X / 확정 : X / 배당 : X |
















