사건번호 2023 타경 6562
본건은 경기도 김포시 마산동 659-6 1동
소재하는 근린주택경매 물건의 포스팅입니다.
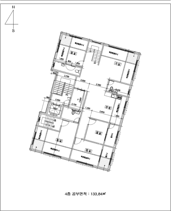
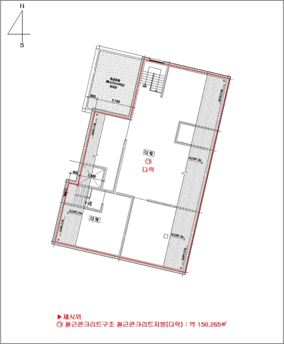
건물면적 [ 692.41㎡ (209.45평) ]
토지면적 [ 302㎡ (91.35평) ]
시세를 반영한 감정가 1,863,696,900에서
1회 유찰되어 감정가 대비 70%
최저가 1,304,588,000부터
입찰에 참여할 수 있습니다.
입찰보증금은 최저가 10%
130,458,800이며,
부천지원 경매6계에서
2026-04-02(10:00)
진행 예정입니다.
| 소재지 | [지번] 경기도 김포시 마산동 659-6 1동 [도로명 주소] 경기도 김포시 김포한강8로148번길 78 1동 |
||||
|---|---|---|---|---|---|
| 용도 | 근린주택 | 채권자 | 광** | 감정가 | 1,863,696,900 |
| 건물면적 | 692.41㎡ (209.45평) | 채무자 | 이** | 최저가 | (70%) 1,304,588,000 |
| 토지면적 | 302㎡ (91.35평) | 소유자 | 이** | 보증금 | (10%) 130,458,800 |
| 매각대상 | 임차권등기 | 경매종류 | 임의경매 | 사건접수일 | 2023-12-07 |
| 최초경매일 | 2026-04-02 | 배당종기일 | 2024-02-20 | 경매개시일 | 2023-12-08 |
| 주의사항 | ☞ 여기 눌러 무료상담 받아보기 | ||||
기일내역
| 회차 | 매각기일 | 최저매각금액 | 결과 |
|---|---|---|---|
| 2025-08-12 | 1,863,696,900 | 변경 | |
| 신건 | 2026-01-06 | 1,863,696,900 | 유찰 |
| 2026-02-12 | 1,304,588,000 | 변경 | |
| 2차 | 2026-04-02 | 1,304,588,000 |
임차인현황
| 임차인 | 점유현황 | 전입/확정/배당 |
|---|---|---|
| i** | 주거임차인 일부(2층201호) |
전입 : 2020-08-31 / 확정 : 2020-07-13 / 배당 : 2023-12-20 |
| i** | 주거임차인 일부[(3층60.59㎡, 4층33.185㎡,옥상지붕층(복복층)28.84㎡] |
전입 : 2021-03-03 / 확정 : 2021-02-01 / 배당 : 2023-12-22 |
| i** | 주거임차인 일부(4층401호) |
전입 : 2021-03-08 / 확정 : 2021-02-22 / 배당 : 2024-01-19 |
| i** | 주거임차인 일부(3층301호) |
전입 : 2022-10-11 / 확정 : 2022-10-11 / 배당 : 2024-01-16 |
| i** | 주거임차인 일부(2층202호) |
전입 : 2022-11-23 / 확정 : 2022-10-24 / 배당 : 2024-01-05 |
| i** | 상가임차인 일부(1층102호33㎡) |
확정 : 2023-12-20 / 배당 : 2023-12-22 |
| i** | 상가임차인 101호(142.43㎡) |
확정 : X / 배당 : X |



























