사건번호 2025 타경 4247
본건은 충청북도 괴산군 소수면 아성리 604외 1필지
소재하는 공장경매 물건의 포스팅입니다.
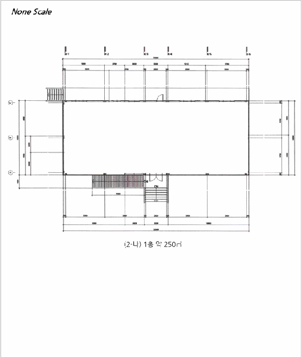
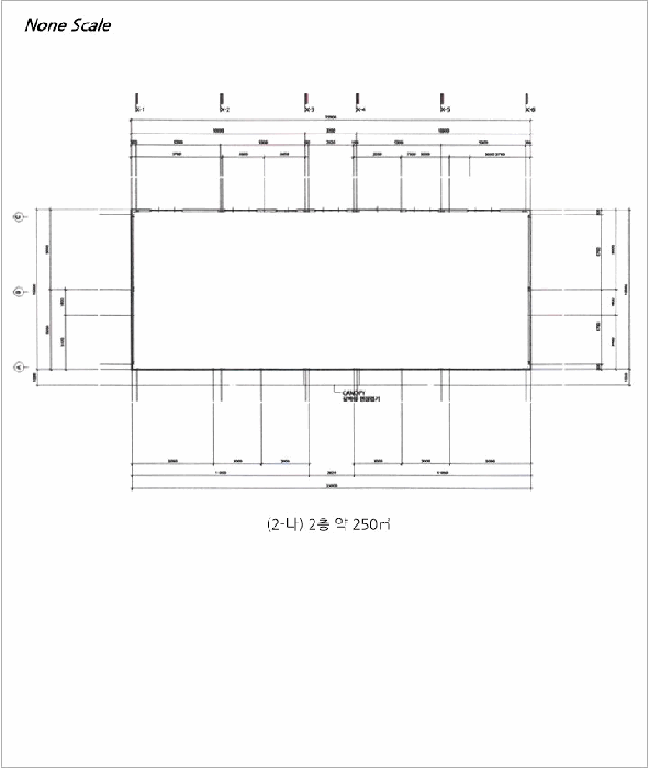
건물면적 [ 2128.88㎡ (643.98평) ]
토지면적 [ 전체:9013㎡ (2726.42평)
매각지분:8526㎡ (2579.1평) ]
시세를 반영한 감정가 2,234,406,200에서
신건으로 감정가 대비 100%
최저가 2,234,406,200부터
입찰에 참여할 수 있습니다.
입찰보증금은 최저가 10%
223,440,620이며,
청주지방법원 경매5계에서
2026-03-11(10:00)
진행 예정입니다.
| 소재지 | [지번] 충청북도 괴산군 소수면 아성리 604외 1필지 [도로명 주소] 충청북도 괴산군 소수면 정용월곡길 36외 1필지 |
||||
|---|---|---|---|---|---|
| 용도 | 공장 | 채권자 | ㈜** | 감정가 | 2,234,406,200 |
| 건물면적 | 2128.88㎡ (643.98평) | 채무자 | 청** | 최저가 | (100%) 2,234,406,200 |
| 토지면적 | 전체:9013㎡ (2726.42평) 매각지분:8526㎡ (2579.1평) |
소유자 | 청** | 보증금 | (10%) 223,440,620 |
| 매각대상 | 건물전부, 토지지분 | 경매종류 | 임의경매 | 사건접수일 | 2025-08-21 |
| 최초경매일 | 2026-03-11 | 배당종기일 | 2025-11-24 | 경매개시일 | 2025-08-22 |
| 주의사항 | ☞ 여기 눌러 무료상담 받아보기 | ||||
기일내역
| 회차 | 매각기일 | 최저매각금액 | 결과 |
|---|---|---|---|
| 신건 | 2026-03-11 | 2,234,406,200 |
임차인현황
| 임차인 | 점유현황 | 전입/확정/배당 |
|---|---|---|
| i** | 공장임차인 공장 |
확정 : X / 배당 : X |
| i** | 공장임차인 공장 |
확정 : X / 배당 : X |































