화성아파트경매 화성시 송동 693 동탄2신도시 하우스디 더 레이크 제2631동 제29층 제2902호 №2025 타경 54614

차별화된 5단계 맞춤형 경매 서비스 - 더블옥션
법원경매전문 (주)더블옥션은 보증보험 가입 및 법원 매수대리 등록업체로 안전하고 책임있는 컨설팅을 진행합니다. 등록번호(02-17-3)
사건번호 2025 타경 54614

본건은 경기도 화성시 송동 693 동탄2신도시 하우스디 더 레이크 제2631동 제29층 제2902호
소재하는 아파트경매 물건의 포스팅입니다.

건물면적 [ 84.96㎡ (25.7평) ]
대지권 [ 63.03㎡ (19.07평) ]

시세를 반영한 감정가 815,000,000에서
1회 유찰되어 감정가 대비 70%
최저가 570,500,000부터
입찰에 참여할 수 있습니다.

입찰보증금은 최저가 10%
57,050,000이며,
수원지방법원 경매13계에서
2026-03-06(10:00)
진행 예정입니다.

소재지 [지번] 경기도 화성시 송동 693 동탄2신도시 하우스디 더 레이크 제2631동 제29층 제2902호
[도로명 주소] 경기도 화성시 동탄면 동탄대로9길 19 동탄2신도시 하우스디 더 레이크 제2631동 제29층 제2902호
용도 아파트 채권자 ㈜**외1명 감정가 815,000,000
건물면적 84.96㎡ (25.7평) 채무자 박** 최저가 (70%) 570,500,000
대지권 63.03㎡ (19.07평) 소유자 박** 보증금 (10%) 57,050,000
매각대상 경매종류 임의경매 사건접수일 2025-02-14
최초경매일 2026-03-06 배당종기일 2025-05-09 경매개시일 2025-02-20
주의사항 ☞ 여기 눌러 무료상담 받아보기

기일내역

회차 매각기일 최저매각금액 결과
신건 2026-01-26 815,000,000 유찰
2차 2026-03-06 570,500,000
정확한 권리 분석, 꼼꼼한 현장 조사, 예상 낙찰가 제안, 대출 연계, 점유자 이전 - 더블옥션

임차인현황

임차인 점유현황 전입/확정/배당
조사된 임차인 내역 없음
더블옥션은 법원 등록 및 보증 보험 가입 업체로 안전하고 성공적인 당신의 비즈니스를 지원합니다. - 더블옥션
현황부동산 전경
현황부동산 해당동
2902호현황
본건 2631동 29층 2902호 현관
본건 2631동 1호,2호 출입구
본건 남서측에서 촬영
본건 북측에서 촬영
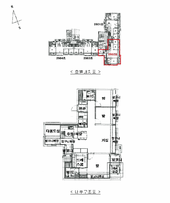
내 부 구 조 도
위 치 도
광 역 위 치 도
광 역 위 치 도
위 치 도
부동산 경매 전문기업 - 더블옥션

Related Posts